Large rooms, private parking and paddock ideal for family life.
Approximately one acre of rear paddock and gardens
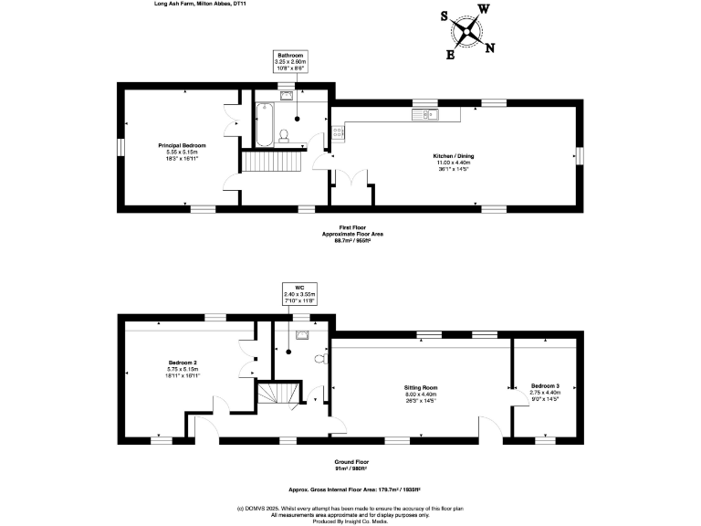
A rare barn-conversion set on roughly one acre, Long Ash Barn offers unusually large rooms and a flexible layout for family living. The ground floor sitting room is bright and characterful with exposed beams and stripped floors, while three versatile bedrooms — including a substantial principal suite — give space for adults, children and home working.
The long open-plan kitchen/dining room provides a bright triple aspect and scope for sociable family life. Outside, the gravel driveway provides private off-street parking for multiple vehicles and the paddock to the rear delivers genuinely useful land for gardens, hobby farming or pony-keeping.
Practical points to note: heating is by oil-fired boiler, there is a single main bathroom plus a generous ground-floor WC (which could be adapted to include bathing facilities), and some external maintenance is evident on the rustic brick and timber elevations. Mobile signal is average but broadband speeds are reported as fast — useful for remote working.
Quietly positioned on the edge of picturesque Milton Abbas, the property combines rural privacy with easy access to local amenities and good schools nearby. For families seeking space, character and outdoor freedom close to Dorchester and Blandford, this barn offers a solid, adaptable home with scope to personalise.
Land for sale in Milton Abbas, Dorset, DT11 — £1,450,000 • 7 bed • 4 bath • 4009 ft²
4 bedroom cottage for sale in Buckland Ripers Village with Land, DT3 — £650,000 • 4 bed • 2 bath • 1486 ft²
5 bedroom detached house for sale in Shaftesbury, SP7 — £1,150,000 • 5 bed • 4 bath • 4000 ft²
3 bedroom barn conversion for sale in Jubilee Hill, Woodlands, Wimborne, BH21 — £800,000 • 3 bed • 3 bath • 2501 ft²
4 bedroom detached house for sale in Milborne St. Andrew, Blandford Forum, DT11 — £625,000 • 4 bed • 3 bath • 2536 ft²
4 bedroom detached house for sale in Moortown Drive, Wimborne, BH21 3AR, BH21 — £795,000 • 4 bed • 2 bath • 2316 ft²










































































