Newly built four-bedroom townhouse with garden, parking and energy-efficient heating..
Underfloor heating to ground floor
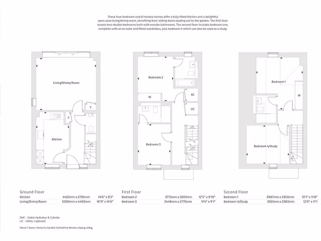
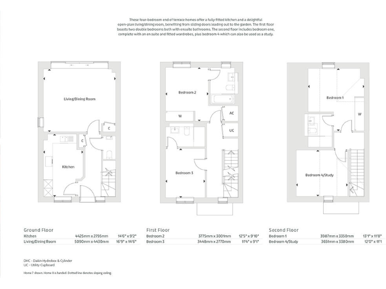
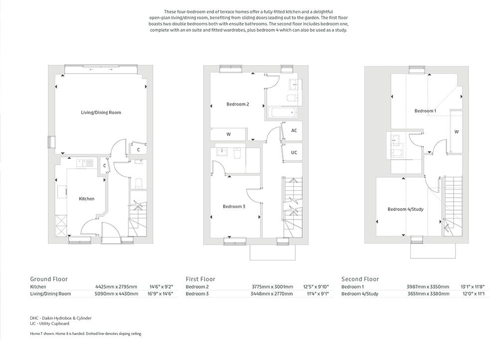
A newly built, freehold 4-bedroom end-of-terrace townhouse arranged over three floors, finished to a high specification and ready to occupy. The ground floor features underfloor heating, a contemporary fitted kitchen with integrated SMEG appliances and Quooker, and a bright living/dining room that opens to a private lawned garden and paved patio. Two allocated parking spaces, a carport and a dedicated EV charging point are accessed from the residents’ courtyard.
The first and second floors deliver flexible family accommodation: two double bedrooms with en suites on the first floor, and a principal bedroom with fitted wardrobes and premium en suite on the top floor, plus a fourth bedroom suitable as a guest room, study or dressing room. Built-in storage and a handy utility cupboard improve day-to-day practicality. Energy-efficient features include a Daikin air source heat pump and CAT6 wiring with SkyQ capability.
Positioned in Chalfont St Peter, the home overlooks Gold Hill Common and sits within walking distance of the village centre, schools and local shops, with Gerrards Cross and fast rail services to London nearby. The development of just ten homes offers a low-maintenance lifestyle and a 10-year new homes warranty for buyer reassurance. A limited-time contribution towards stamp duty is available for qualifying purchases.
Notable negatives are disclosed plainly: this is a small development with limited remaining stock and crime in the immediate area is reported as above average. Photographs are indicative and individual plot layouts may vary.
4 bedroom end of terrace house for sale in Austenwood Lane, Chalfont St. Peter, SL9 — £800,000 • 4 bed • 3 bath • 1407 ft²
4 bedroom end of terrace house for sale in Hamilton House, Austenwood Lane, Chalfont St. Peter, Buckinghamshire, SL9 — £785,000 • 4 bed • 3 bath • 1344 ft²
3 bedroom end of terrace house for sale in Austenwood Lane, Chalfont St. Peter, SL9 — £850,000 • 3 bed • 3 bath • 1534 ft²
4 bedroom detached house for sale in Glebe Road, Chalfont St Peter SL9 — £1,045,000 • 4 bed • 4 bath • 2096 ft²
2 bedroom end of terrace house for sale in De Havilland Place, White Waltham Village, Maidenhead, SL6 — £575,000 • 2 bed • 2 bath • 932 ft²
2 bedroom terraced house for sale in De Havilland Place, White Waltham Village, Maidenhead, SL6 — £525,000 • 2 bed • 2 bath • 857 ft²


















































