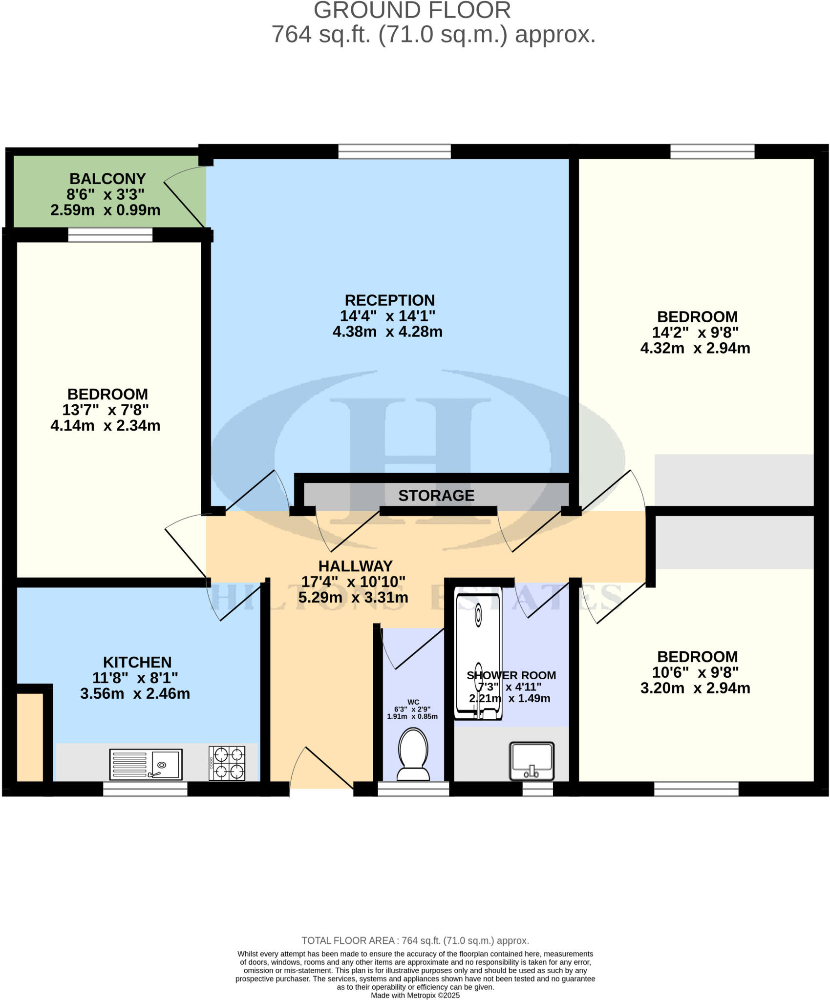
**Standout Features:**
- Three double bedrooms
- Bright living area with private balcony
- Modern and well-equipped separate kitchen
- Prime location on Southall Broadway
- Excellent transport links via Crossrail
- Close proximity to local schools and amenities
- Ideal for first-time buyers or investors
**Concise Summary:**
Discover incredible value in this spacious three-bedroom first-floor apartment located in the heart of Southall, UB1. This well-maintained residence features a bright living room, a well-equipped modern kitchen, and a private balcony—perfect for both relaxation and outdoor enjoyment. With excellent transport links including Southall Crossrail Station and major road routes, commuting to central London or Heathrow is effortless.
Families will appreciate the nearby reputable schools such as Villiers High School and Tudor Primary. The average-sized property offers 893 square feet of space, providing a comfortable environment for everyday living. Though crime rates are average for the area, the home boasts potential for growth as a rental investment or for personal use. With a leasehold tenure and council tax classified as affordable, this apartment is a move-in-ready gem not to be missed. Act fast—viewings are highly recommended!
3 bedroom flat for sale in The Broadway, Southall, UB1 — £340,000 • 3 bed • 1 bath • 893 ft²
3 bedroom apartment for sale in Convent Way, Southall, UB2 — £319,950 • 3 bed • 1 bath • 872 ft²
3 bedroom maisonette for sale in Longford Avenue, Southall, UB1 — £379,950 • 3 bed • 1 bath • 786 ft²
1 bedroom apartment for sale in Featherstone Road, Southall, UB2 — £245,000 • 1 bed • 1 bath • 473 ft²
3 bedroom flat for sale in Grosvenor Road, Southall, UB2 — £355,000 • 3 bed • 1 bath • 742 ft²
3 bedroom maisonette for sale in Longford Avenue, Southall, UB1 — £379,950 • 3 bed • 1 bath • 786 ft²


















































