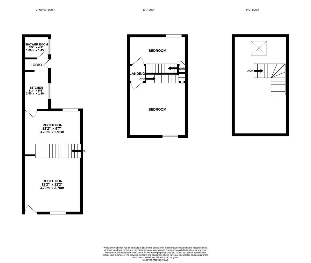
**Standout Features:**
- Two versatile reception rooms
- Two spacious double bedrooms
- Converted loft room for additional living space
- Ground floor shower room
- Double glazing and gas central heating
- Private rear courtyard, ideal for outdoor relaxation
- Freehold tenure
**Potential Concerns:**
- High crime rate in the local area
- Small overall size (337 sq ft)
- No insulation in solid brick construction
This charming Victorian terraced house on Marlborough Street in Stoke-On-Trent offers a unique blend of character and practicality, perfect for first-time buyers or investors. With two versatile reception rooms, which can serve as a lounge, dining area, or home office, plus a functional kitchen with adequate storage, this property is designed for modern living. The ground floor provides a convenient shower room, while the two generously sized double bedrooms invite comfort and personalization.
A notable feature is the spacious converted loft room, offering additional flexible space for hobbies, a guest area, or a home office. Step outside to discover a private rear courtyard, a low-maintenance area that’s perfect for unwinding or entertaining.
While the property benefits from double glazing and gas central heating, it’s worth noting the high crime rate in the area and the solid brick walls that lack insulation. With room for cosmetic updates and personal touches, this home holds significant potential for those with vision. Enjoy the advantages of being in a well-connected urban setting, with essential amenities and good-rated schools nearby. Priced competitively at £100,000, this property won't last long—don’t miss the opportunity to make it your own!
2 bedroom terraced house for sale in Bath Street, Stoke, Stoke-On-Trent, ST4 — £155,000 • 2 bed • 1 bath • 1260 ft²
2 bedroom terraced house for sale in Marlborough Street, Fenton, Stoke on Trent, ST4 3QE, ST4 — £110,000 • 2 bed • 1 bath
2 bedroom terraced house for sale in Gable Street, Stoke-On-Trent, ST4 — £100,000 • 2 bed • 1 bath • 753 ft²
3 bedroom terraced house for sale in Knight Street, Stoke-On-Trent ST6 5HY, ST6 — £130,000 • 3 bed • 1 bath • 926 ft²
2 bedroom terraced house for sale in Selwyn Street, Stoke-On-Trent, ST4 — £95,000 • 2 bed • 1 bath • 732 ft²
2 bedroom terraced house for sale in Wallis Street, Stoke-On-Trent, ST4 — £90,000 • 2 bed • 1 bath • 800 ft²


















































































