South-facing living and a full-width conservatory with private gardens.
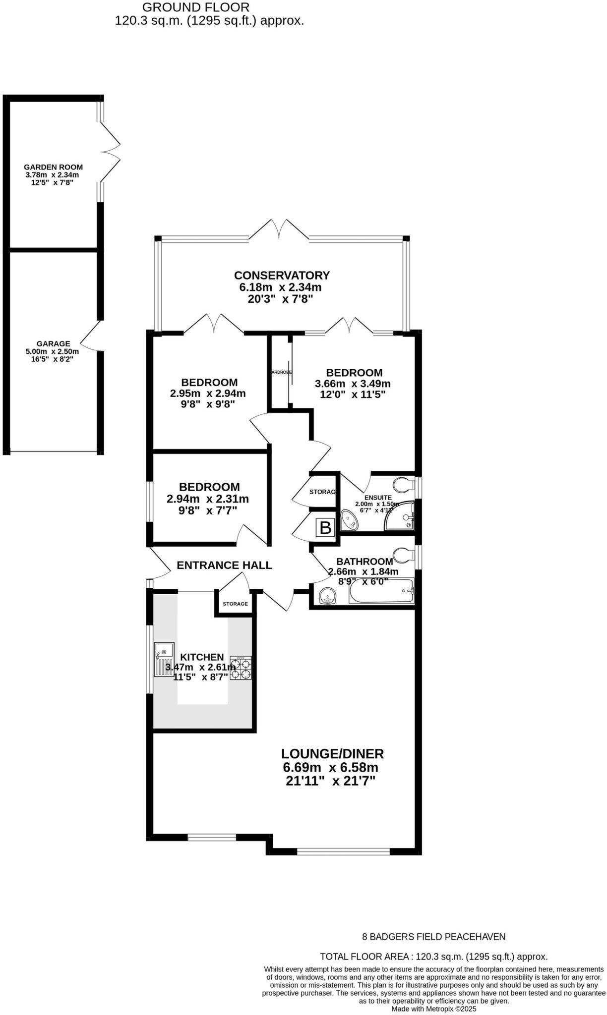
Detached single-storey bungalow in quiet Peacehaven close
Set at the end of a quiet close in Peacehaven, this detached three-bedroom bungalow offers generous single-storey living with clear downsizing and family appeal. The south-facing lounge/diner and wide 21' conservatory deliver bright, flexible reception space for everyday life and entertaining. The fitted shaker-style kitchen includes integrated appliances; bedrooms one and two have fitted wardrobes and direct conservatory access, and the principal bedroom benefits from an en-suite shower room.
Outdoors the plot is low-maintenance and private: a paved rear garden with retained beds, a wide driveway with covered car port, and a good-size garage with power and light. A separate insulated garden office provides useful home-working space. Practical features include double glazing (post-2002), mains gas central heating with boiler and radiators, loft access with a large hatch, and no onward chain for a quicker sale.
Buyers should note some cosmetic updating is needed in places (living room panelling and textured ceilings are dated) and the EPC is a D. The bungalow was constructed in the late 1970s/early 1980s, so systems and finishes may benefit from modernisation. Local schools and bus links are close by, and the area is generally affluent and low-crime, suiting buyers seeking a peaceful suburban home or a lock-up-and-leave retirement property.
3 bedroom detached bungalow for sale in Hoddern Avenue, Peacehaven, BN10 7PH, BN10 — £375,000 • 3 bed • 2 bath • 818 ft²
3 bedroom detached bungalow for sale in Cissbury Avenue, Peacehaven, BN10 8TJ, BN10 — £415,000 • 3 bed • 1 bath • 829 ft²
3 bedroom detached bungalow for sale in Phyllis Avenue, Peacehaven, East Sussex, BN10 — £400,000 • 3 bed • 1 bath • 890 ft²
3 bedroom detached bungalow for sale in Malines Avenue, Peacehaven, BN10 — £460,000 • 3 bed • 2 bath • 1280 ft²
3 bedroom detached bungalow for sale in Horsham Avenue North, Peacehaven, BN10 8DU, BN10 — £375,000 • 3 bed • 2 bath • 973 ft²
2 bedroom detached bungalow for sale in Roderick Avenue North, Peacehaven, BN10 — £425,000 • 2 bed • 1 bath • 1102 ft²






































































































