**Standout Features:**
- Prime town center location on Hawick High Street
- Established business with a turnover of £371,000 in the previous financial year
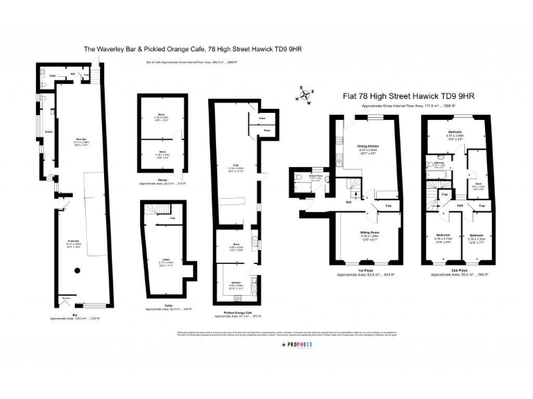
- Well-maintained three-bedroom dwellinghouse above the bar
- Enclosed beer garden and spacious public areas
- Potential for diverse business uses with the adjoining Pickled Orange cafe
**Concerns and Considerations:**
- Consideration needed for maintenance aspects related to the dual business and residential spaces
- Area classification indicates lower socio-economic status
This remarkable mixed-use property offers an exceptional investment opportunity in the heart of Hawick. The Waverley Bar has long been a staple of the community, boasting a solid turnover and a loyal customer base. The adjoining Pickled Orange café enhances revenue potential, allowing for varied business uses—from public house to cafe or even restaurant. The property features an immaculately presented three-bedroom dwelling, featuring modern upgrades throughout, making it move-in ready.
Positioned prominently on a bustling high street, the property enjoys significant foot traffic, ideal for thriving commercial ventures. The inviting outdoor beer garden complements the spacious interiors, creating an appealing ambiance for customers. This historic Georgian building marries charm with contemporary function, making it a rare find for both investors and first-time buyers looking to run a business while enjoying a comfortable home above. With the town's excellent amenities and transport links, this could be your chance to own a unique lifestyle property with an established business. Don’t miss out on this exclusive opportunity—viewings are essential to appreciate all it has to offer!
Commercial property for sale in Teviot Crescent, Hawick, Roxburghshire, TD9 — £130,000 • 1 bed • 1 bath • 3152 ft²
Leisure facility for sale in 13 Teviot Crescent, Hawick, TD9 9RE, TD9 — £90,000 • 1 bed • 1 bath • 3944 ft²
Commercial property for sale in Howegate, Hawick, TD9 — £70,000 • 1 bed • 1 bath • 699 ft²
Commercial property for sale in High Street, Hawick, TD9 — £75,000 • 1 bed • 1 bath • 524 ft²
House for sale in 4 , Bourtree Place
Hawick, TD9 9HW, TD9 — £110,000 • 1 bed • 1 bath • 2800 ft²
Commercial property for sale in High Street, Hawick, Hawick, TD9 — £299,500 • 1 bed • 1 bath • 8534 ft²


















































































































































































