Compact, newly refreshed bungalow with driveway, car port and sunny rear garden — ideal for downsizers..
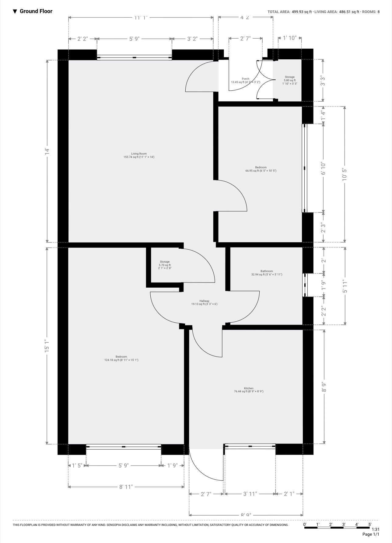
Two-bedroom semi-detached single-storey bungalow
Bright, single-storey living in a quiet Pensby cul-de-sac — a newly refreshed two-bedroom bungalow designed for low-maintenance living. The remodelled kitchen, recent carpeting and tidy bathroom mean you can move in with minimal immediate works. The compact layout and single-storey plan suit downsizers, those with limited mobility, or buyers wanting a simple, manageable home.
Outside, the property offers practical benefits: private driveway, car port and a sunny, well-kept rear garden with patio and shed for storage. Fast local broadband, low crime and nearby good schools add to practical day-to-day appeal. Built in the 1980s, the house benefits from cavity walls and mains gas central heating via boiler and radiators.
Buyers should note the bungalow is small at about 499 sq ft and is leasehold — check lease length, ground rent and any service charges before committing. Double glazing is present but the installation date is unknown, and while the bungalow has been recently refreshed, older building components typical of the era may require attention over time.
Overall, this property is a sensible, well-presented option for someone seeking a compact, easy-care home in a peaceful neighbourhood. It offers immediate liveability with straightforward potential to personalise, provided you factor in the limited internal space and leasehold status into your plans.
2 bedroom bungalow for sale in Ridgemere Road, Pensby, Wirral, CH61 — £250,000 • 2 bed • 1 bath • 638 ft²
2 bedroom bungalow for sale in Columbus Drive, Pensby, Wirral, CH61 — £270,000 • 2 bed • 1 bath • 900 ft²
2 bedroom bungalow for sale in Nelson Drive, Pensby, Wirral, CH61 — £240,000 • 2 bed • 1 bath • 710 ft²
2 bedroom bungalow for sale in Woodend, Pensby, Wirral, CH61 — £265,000 • 2 bed • 1 bath • 811 ft²
2 bedroom bungalow for sale in Woodend, Pensby, Wirral, CH61 — £250,000 • 2 bed • 1 bath • 728 ft²
2 bedroom semi-detached bungalow for sale in Shearman Close, Pensby, Wirral, CH61 — £230,000 • 2 bed • 1 bath • 636 ft²


























































