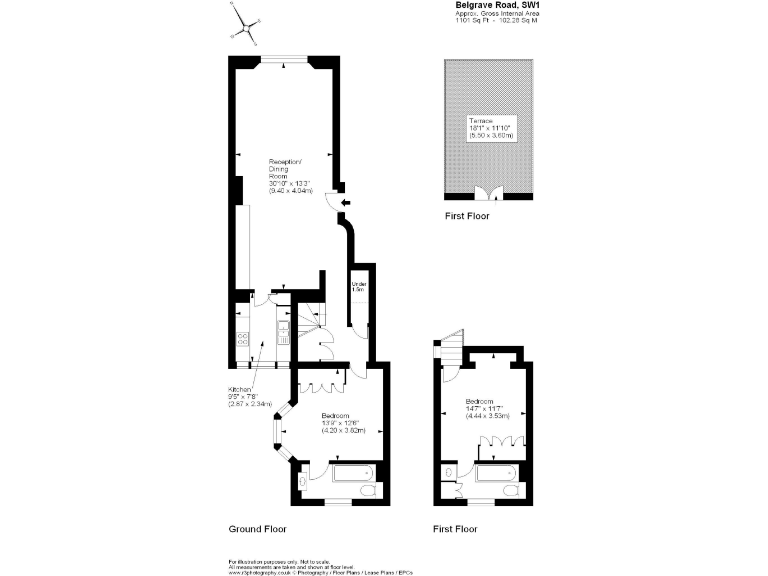
Two double bedrooms, two en‑suite bathrooms and a private roof terrace in Pimlico.
Approximately 1,101 sq ft over ground and first floors
Set over the ground and first floors of a handsome period building in central Pimlico, this well-proportioned two-bedroom apartment brings classic character together with contemporary living. A magnificent 30' reception and dining room with high Victorian ceilings and parquet flooring creates a gracious entertaining space, while a separate modern kitchen keeps daily life practical. Both bedrooms are doubles with en-suite bathrooms, giving comfortable privacy for residents and guests.
A standout is the private roof terrace, ideal for alfresco dining and city views — a rare outdoor space for this central location. Practical positives include a large gross internal area of approximately 1,101 sq ft, double glazing installed after 2002, mains gas central heating, fast broadband and excellent mobile signal.
Buyers should note a few material points: council tax sits in Band F, so running costs are higher than average; crime in the immediate area is above average; and the building’s solid brick walls (pre-1900 construction) likely lack modern cavity insulation, which may affect energy efficiency. The property is sold as a share of freehold with around 102 years remaining on the lease.
This apartment will suit someone wanting a stylish central home with entertaining space and a private terrace, or an investor targeting high-demand Pimlico lettings. There is clear scope to enhance energy performance and personalise finishes while benefiting from exceptional location and size.
2 bedroom flat for sale in Guildhouse Street,
Westminster, SW1V — £1,200,000 • 2 bed • 2 bath • 1045 ft²
2 bedroom flat for sale in Belgrave Road, LONDON, SW1V — £1,290,000 • 2 bed • 2 bath • 1105 ft²
2 bedroom apartment for sale in Belgrave Road, London, SW1V — £800,000 • 2 bed • 1 bath • 616 ft²
3 bedroom apartment for sale in Ebury Bridge Road, London, SW1W — £1,350,000 • 3 bed • 3 bath • 1241 ft²
3 bedroom flat for sale in 55 Ebury Square, Belgravia SW1W — £2,350,000 • 3 bed • 2 bath • 1184 ft²
2 bedroom flat for sale in St. Georges Square, Pimlico, SW1V — £895,000 • 2 bed • 1 bath • 564 ft²










































