Large versatile property with annexe and long sunlit garden for families.
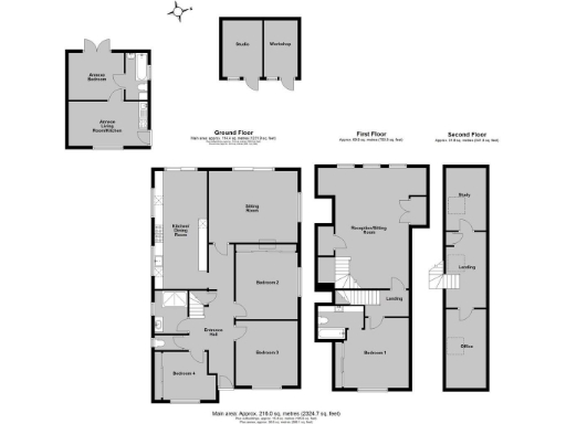
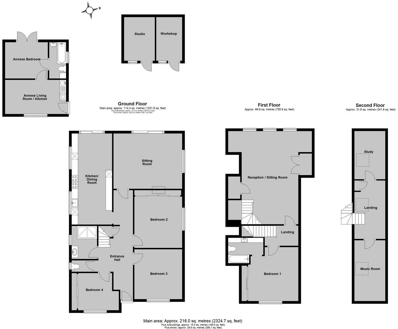
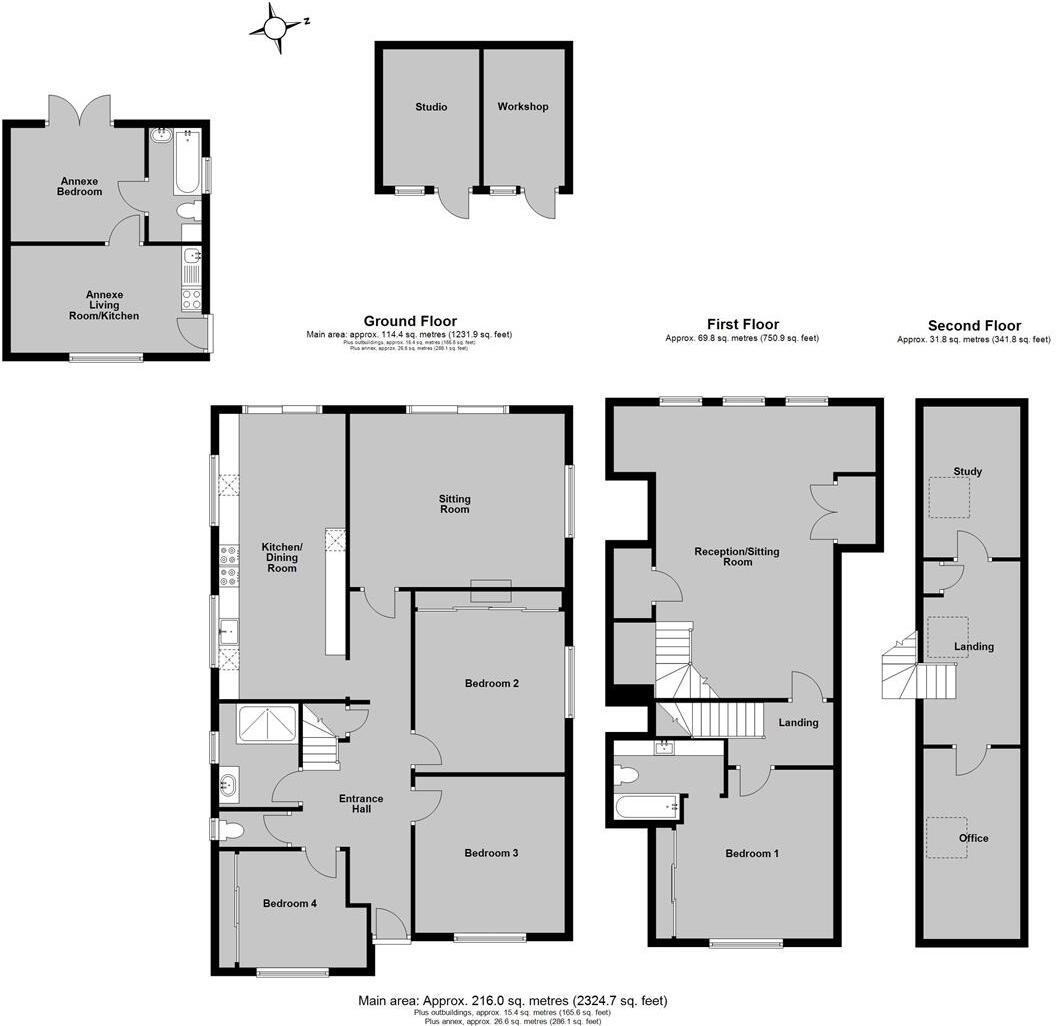
Spacious 2,324 sq ft detached family home across three floors
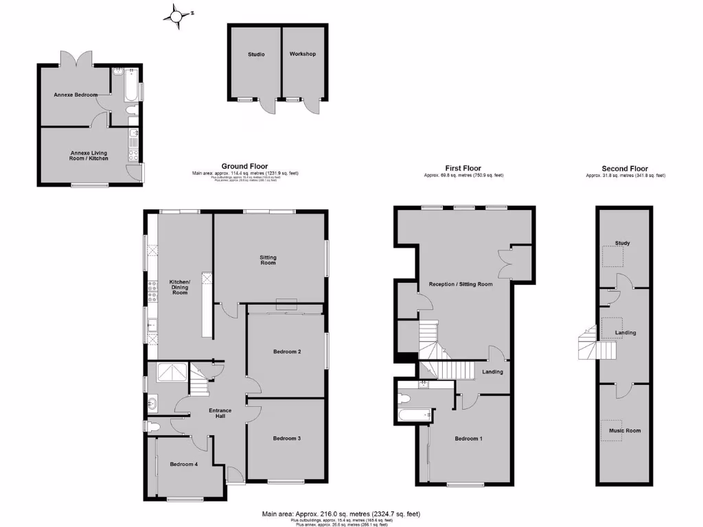
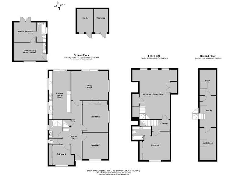
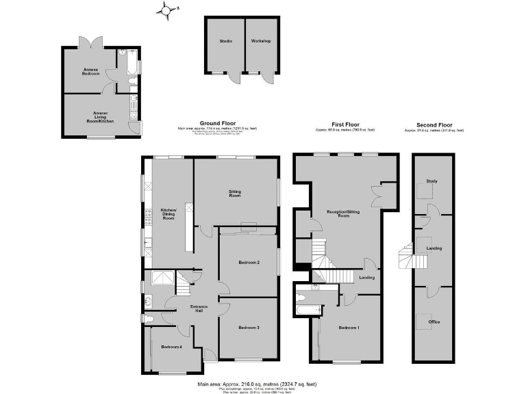
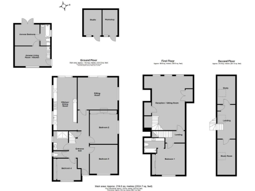
Self-contained one-bedroom annexe with en-suite bathroom and kitchenette
Westerly-facing rear garden approximately 85ft (26m)
Driveway offers off-street parking for several vehicles
Four reception rooms plus studio and workshop outbuildings
Built 1950–1966; may need cosmetic updating or selective refurbishment
Only two main bathrooms for five bedrooms; check family circulation
Council tax band above average
An exceptionally spacious detached family home arranged over three floors, set within a desirable Whitstable location just over a mile from the station and seafront. The house extends to roughly 2,324 sq ft and offers flexible living with four reception rooms, five bedrooms and a self-contained one-bedroom annexe — ideal for multigenerational living or rental income. The westerly-facing rear garden stretches to about 85ft, catching the afternoon sun and providing room for play, gardening and a detached studio/workshop.
Practical features include a wide driveway with off-street parking for several vehicles, double glazing installed after 2002 and mains gas central heating by boiler and radiators. The setting is peaceful, close to local schools rated Good and to the Crab & Winkle Way for countryside walks and cycling into Canterbury. There is no flood risk, low local crime and fast broadband and mobile signal, reinforcing everyday convenience.
Buyers should note the property dates from the 1950s–1960s and, while spacious, may benefit from cosmetic updating or selective refurbishment to match contemporary tastes. There are two main bathrooms serving five bedrooms (plus annexe facilities), and council tax is above average. The house is offered with no onward chain, which can speed a purchase.
Overall this is a versatile family home with substantial accommodation, outbuildings and income potential from the annexe. It will suit growing families seeking space and proximity to Whitstable’s town centre, seafront and transport links, or buyers looking for a property with renovation upside.
5 bedroom semi-detached house for sale in Plantation Road, Whitstable, CT5 — £575,000 • 5 bed • 2 bath • 1559 ft²
4 bedroom detached house for sale in Invicta Road, Whitstable, CT5 — £895,000 • 4 bed • 3 bath • 7347 ft²
5 bedroom detached house for sale in Florence Avenue, Seasalter, Whitstable, CT5 — £575,000 • 5 bed • 2 bath • 1572 ft²
3 bedroom detached house for sale in Grasmere Road, Whitstable, Kent, CT5 — £455,000 • 3 bed • 2 bath • 1101 ft²
4 bedroom semi-detached house for sale in Shearwater Avenue, Whitstable, CT5 — £460,000 • 4 bed • 2 bath • 1327 ft²
5 bedroom detached house for sale in Hodgson Road, Seasalter, Whitstable, CT5 — £875,000 • 5 bed • 3 bath • 2788 ft²


































































































