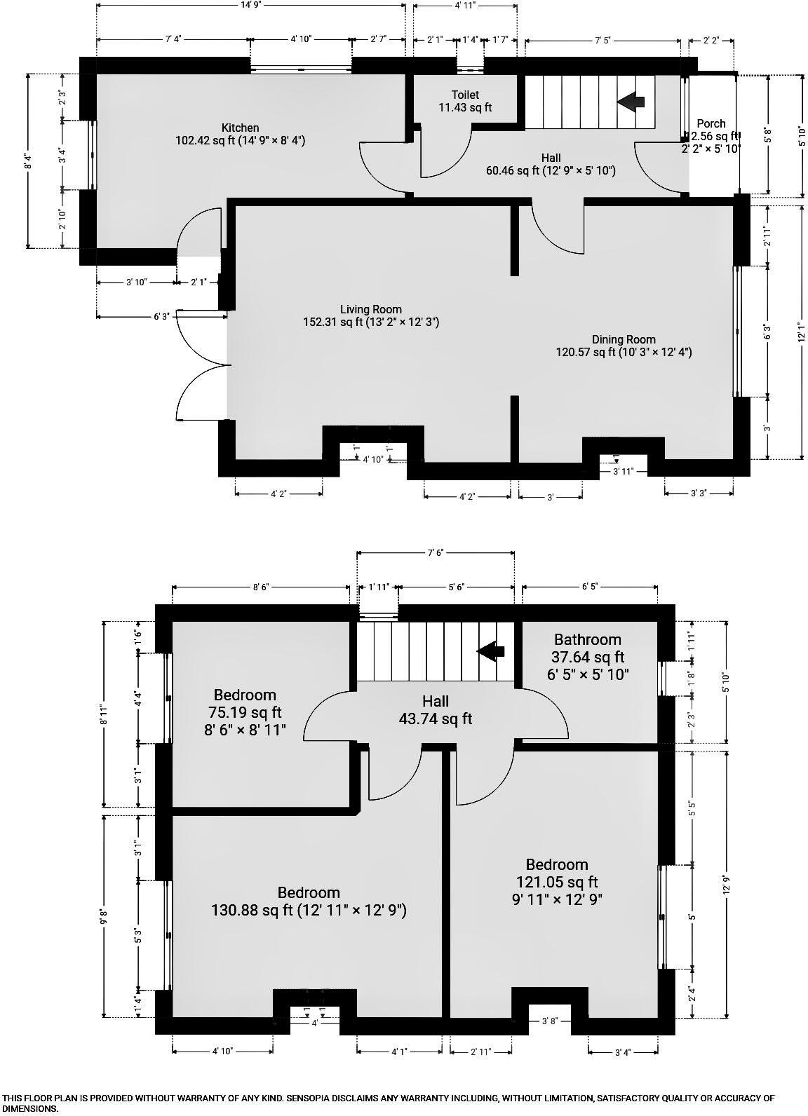
Chain-free three-bedroom home with garage, driveway and easy access to shops and transport.
- Chain-free three-bedroom semi-detached house
- Driveway parking for several cars and detached garage
- Front gravel garden, lawned rear garden with borders
- Extended kitchen, lounge with patio doors to garden
- Downstairs WC and three upstairs bedrooms
- Electric room heaters; no central heating system
- Solid brick walls likely uninsulated; needs modernisation
- Located close to shops, buses and a range of schools
Tucked away in a well-connected Moreton street, this chain-free three-bedroom semi-detached home offers a practical layout and scope to add value. The house has a welcoming porch, separate dining area, lounge with patio doors, an extended kitchen, and a handy downstairs WC — all suited to everyday family life.
Outside there is generous off-street parking for several cars, a detached garage for storage or workshop use, a low-maintenance gravelled front garden and a neatly lawned rear garden with established borders. Nearby amenities, frequent buses and a range of primary and secondary schools make the location convenient for families and renters.
The property is solidly built (inter-war era) and double glazed, but has electric room heaters rather than a central heating system and walls are likely uninsulated. These factors, plus the need for some modernisation, should be considered when budgeting. Council Tax Band B and freehold tenure are practical positives.
Overall this is a sensible purchase for buyers seeking a well-located family home or a buy-to-let with refurbishment potential. Early viewing is recommended to appreciate the plot, parking and garage space.
3 bedroom semi-detached house for sale in Borrowdale Road, Moreton, Wirral, CH46 — £280,000 • 3 bed • 1 bath • 1225 ft²
3 bedroom semi-detached house for sale in Pinetree Grove, Moreton, Wirral, CH46 — £220,000 • 3 bed • 1 bath • 749 ft²
3 bedroom semi-detached house for sale in Hoylake Road, Moreton, Wirral, CH46 — £210,000 • 3 bed • 1 bath • 996 ft²
3 bedroom semi-detached house for sale in Flaxhill, Moreton, Wirral, CH46 — £200,000 • 3 bed • 1 bath • 955 ft²
4 bedroom bungalow for sale in Susan Grove, Moreton, Wirral, CH46 — £350,000 • 4 bed • 2 bath • 1744 ft²
3 bedroom detached house for sale in Morpeth Close, Moreton, Wirral, CH46 — £250,000 • 3 bed • 1 bath • 787 ft²






































































