**Standout Features:**
- 3-bedroom detached family home
- Spacious living and dining rooms with bay window
- Modern kitchen/breakfast room
- First-floor bathroom with corner bath and shower
- Good-sized rear garden with patio and timber deck
- Driveway for off-street parking
- Backs onto Beechwood Park
- Conveniently located near M4 junctions 24 and 25
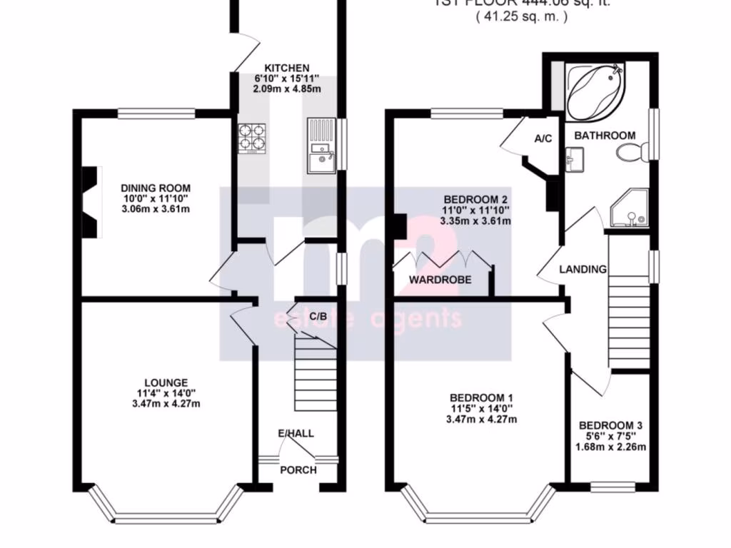
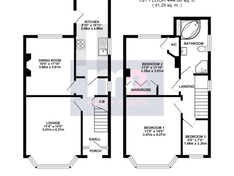
Nestled just off Chepstow Road, this NO CHAIN 3-bedroom detached home presents an incredible opportunity for families or first-time buyers seeking a comfortable living space. Its inviting entrance leads you to a spacious living room, adorned with a charming bay window, alongside a dedicated dining area featuring elegant wood block flooring. The long kitchen/breakfast room offers modern convenience and space for casual dining. Venture upstairs to find three well-proportioned bedrooms and a family bathroom boasting a corner bath and shower for versatile family use.
Step outside to discover an easily maintained rear garden, perfect for outdoor gatherings, which showcases a patio and timber deck, all enclosed by fencing and offering direct access to the serene Beechwood Park. The property benefits from a gas combi boiler, double glazing, and an off-street driveway, ensuring your safety and comfort. While the home is generally well-maintained, with no onward chain, potential buyers should be mindful of the average-sized plot and the additional upkeep associated with a property of this age.
Conveniently located near local shops, schools, and leisure amenities, this family-friendly home is not one to be missed — envision your future here and seize this opportunity while it lasts!
3 bedroom semi-detached house for sale in Park Drive, Newport, NP20 — £260,000 • 3 bed • 1 bath • 1194 ft²
3 bedroom link detached house for sale in Beech Grove, St Brides Wentlooge, Newport, NP10 — £275,000 • 3 bed • 1 bath • 914 ft²
3 bedroom detached house for sale in Ringland Circle, Newport, NP19 — £290,000 • 3 bed • 1 bath • 1244 ft²
3 bedroom semi-detached house for sale in Extended Semi-Detached House, Somerton Road, Newport, NP19 — £220,000 • 3 bed • 1 bath • 909 ft²
3 bedroom semi-detached house for sale in Milton Road, Newport, NP19 — £240,000 • 3 bed • 1 bath • 942 ft²
3 bedroom detached house for sale in Brigantine Grove, Newport, NP10 — £260,000 • 3 bed • 1 bath






















































