Income-producing city-centre flat with long lease and immediate rent.
New-build one-bedroom apartment, built 2022
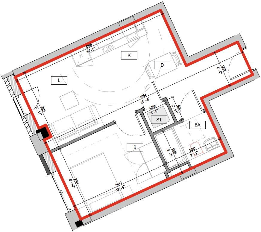
A compact, modern 1-bedroom apartment in the Springwell Gardens development, offered with tenant in situ and immediate rental income. The flat spans approximately 396 sq ft, arranged as an open-plan living/kitchen and double bedroom, facing the communal courtyard for good daylight. Built in 2022, the specification is contemporary and low-maintenance, with integrated appliances and quality finishes.
This is chiefly an investor-led opportunity: the property is currently let at £1,000 pcm, providing an established income stream from day one. The lease is effectively long (999 years), there is no ground rent, and annual service charge is £1,233.59 — important running costs to factor into yields. EWS1 compliance is noted for buyer confidence.
Be clear about the material considerations: heating is electric (room heaters), which can be more costly than gas alternatives. The apartment is small and best suited to single professionals or as a rental unit rather than a family home. The wider area is classed as very deprived, which can affect capital growth prospects although it also supports strong rental demand.
Overall this is a straightforward, low-maintenance city-centre investment with immediate income and a long lease. Buyers should assess running costs, council tax banding, and local market dynamics alongside the reliable rental return.
1 bedroom apartment for sale in Springwell Gardens, Whitehall Road, Leeds, LS12 — £185,000 • 1 bed • 1 bath • 470 ft²
1 bedroom apartment for sale in Springwell Gardens, Whitehall Road, Leeds, LS12 — £145,000 • 1 bed • 1 bath • 350 ft²
1 bedroom apartment for sale in Springwell Gardens, Whitehall Road, Leeds City Centre, LS12 — £170,000 • 1 bed • 1 bath • 371 ft²
1 bedroom apartment for sale in Flat 206, Springwell Gardens, Leeds City Centre, LS12 — £165,000 • 1 bed • 1 bath • 338 ft²
1 bedroom apartment for sale in Flat 213, Springwell Gardens, Leeds City Centre, LS12 — £200,000 • 1 bed • 1 bath • 405 ft²
1 bedroom apartment for sale in Springwell Gardens, Whitehall Road, Leeds City Centre, LS12 — £220,000 • 1 bed • 1 bath • 403 ft²










































































