Turnkey holiday lodge with short-term income and extensive estate amenities.
- Freehold lodge within Duchally Country Estate, set in 27 acres of parkland
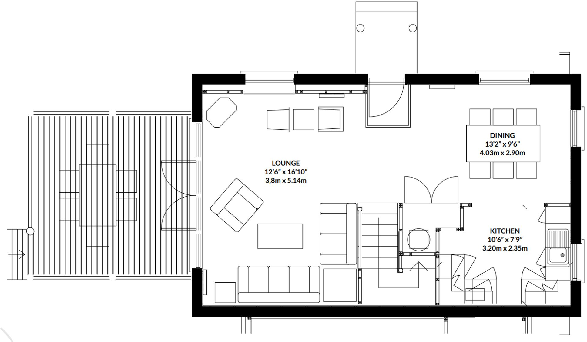
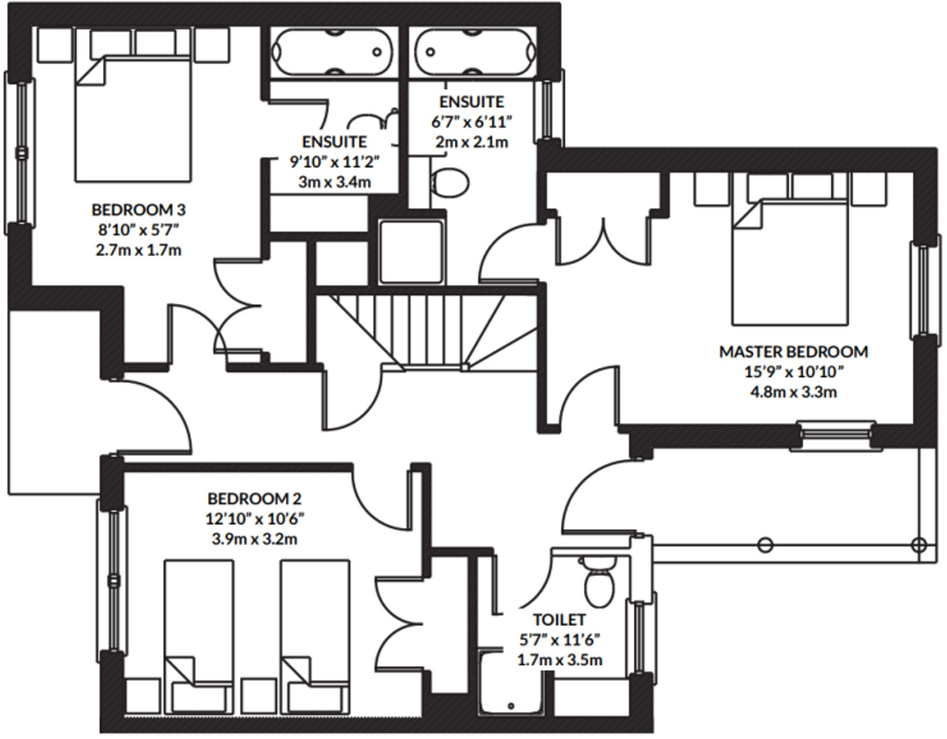
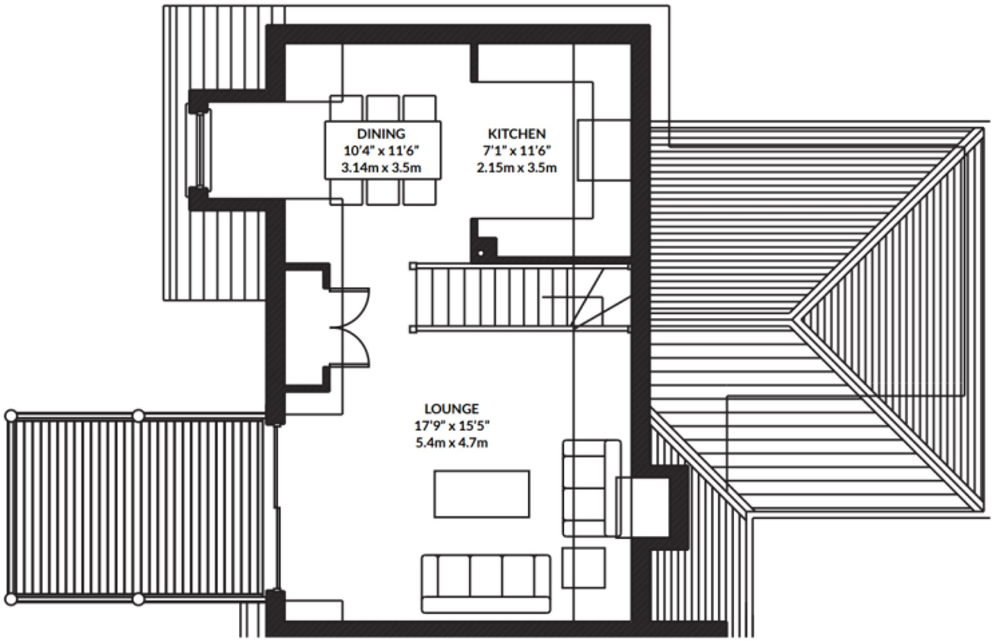
- 3 bedrooms, approx. 3,002 sq ft, very large plot and ~20 rooms
- Cannot be used as your principal UK residence
- 6% guaranteed rental return provided by developer in years 1–3
- Sold with full furniture package including white goods and crockery
- Owners have access to wellness centre, spa, restaurant and distillery
- Broadband speeds very slow; mobile signal excellent
- Area classified as deprived; consider long-term rental demand
Set within 27 acres of parkland near Gleneagles, this three-bedroom period house is offered as a freehold lodge within Duchally Country Estate. The property is sold with a complete furniture pack and benefits from a developer-guaranteed 6% rental return for years one to three. Owners also have full access to the estate’s wellness centre, restaurant, whisky bar, terrace and distillery facilities.
This is primarily an investor or holiday-home proposition. The lodge cannot be used as your principal UK residence, so it suits owners seeking holiday income, short-stay lettings or a secondary retreat. The cottage’s large overall footprint (approximately 3,002 sq ft) and very large plot give substantial accommodation and scope for guest-focused layouts or interior upgrades.
Practicalities to note: broadband speeds on the estate are very slow, and the wider area is classified as deprived, which may affect long-term rental demand and utilities. The guaranteed return applies only for the first three years and further income depends on the estate’s management and market conditions. The house was built in 1838 and presents classic character alongside modern hospitality finishes; check specific maintenance or upgrade needs before purchase.
For buyers seeking a turnkey holiday-let with immediate facilities and an initial income guarantee, this Duchally lodge offers strong lifestyle and short-term revenue potential. For those wanting a full-time home, the restriction on principal residence use is a decisive limitation.
3 bedroom cottage for sale in Duchally Country Estate, Auchterarder, PH3 — £265,000 • 3 bed • 3 bath • 1389 ft²
3 bedroom cottage for sale in Duchally Road, Duchally Country Estate, Auchterarder, PH3 — £265,000 • 3 bed • 3 bath • 1389 ft²
2 bedroom cottage for sale in Duchally Country Estate, Auchterarder, PH3 — £249,000 • 2 bed • 2 bath • 1033 ft²
2 bedroom cottage for sale in Duchally Road, Duchally Country Estate, Auchterarder, PH3 — £260,000 • 2 bed • 2 bath • 1161 ft²
2 bedroom lodge for sale in Forrest Lodge (Beckwood|), Tullibardine Park, PH3 — £59,999 • 2 bed • 2 bath
2 bedroom lodge for sale in Lochmanor Park, Dunning, PH2 — £89,950 • 2 bed • 2 bath • 514 ft²














































































































