ME6 5PA - 2 bed spacious period home in Holborough Road, ME6 5PA

View on Property Piper

2 bedroom end of terrace house for sale in Holborough Road, Snodland, Kent, ME6

Summary - 13 HOLBOROUGH ROAD SNODLAND ME6 5PA

2 bed 1 bath End of Terrace

Large rooms, double garage and a stylish kitchen near village amenities.
- Large overall size with 1,281 sq ft and six rooms
- Impressive, well-appointed kitchen, 20'7 x 7'9
- Double garage plus rear driveway provides easy parking
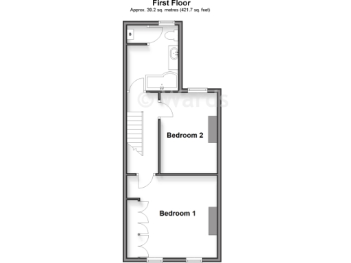
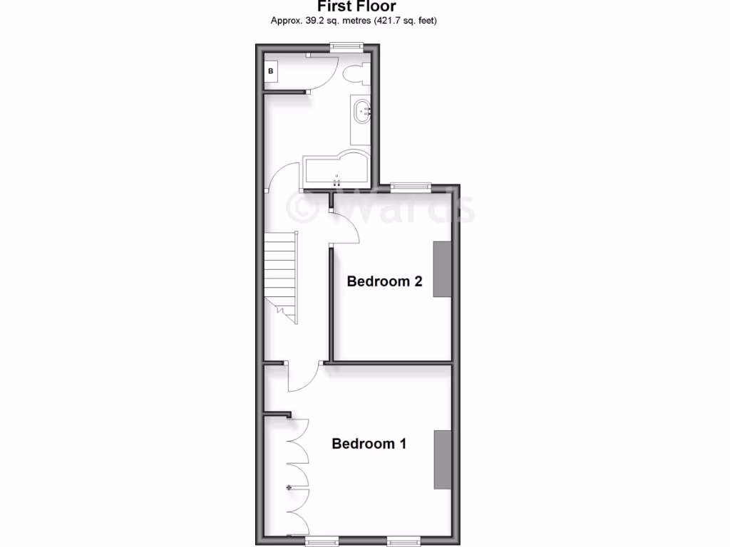
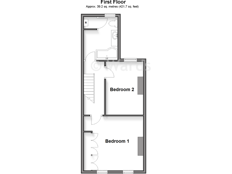
- Two large double bedrooms; generous bathroom size
- Freehold tenure with fast broadband and excellent mobile signal
- Heating via electric storage heaters; may increase running costs
- Double glazing installed before 2002; possible replacement consideration
- Local area: high crime and higher deprivation; factor into decision
This sizable end-of-terrace offers generous living space, an impressive fitted kitchen and easy parking with a double garage plus rear driveway. The property feels styled and cared-for, with period-style external features and detailed internal finishes that deliver immediate kerb appeal.

Internally you'll find two large double bedrooms, a spacious lounge and separate dining area, plus a bathroom with good proportions. Practical positives include double glazing (installed before 2002), freehold tenure, fast broadband and excellent mobile signal—useful for home working and everyday life.

Be aware of a few material points: heating is by electric storage heaters and the glazing is older double glazing, which may affect running costs and comfort. The local area has high crime levels and higher deprivation indicators; buyers should consider security and local conditions alongside the property merits. Any buyer should verify fixtures, services and planning history where relevant.

For a first-time buyer or couple looking for space and character in a well-connected town location, this house represents strong potential. The large kitchen and adaptable room layout create scope to personalise and add value, while the garage and driveway are rare practical benefits in this area.

Property Details

Image Descriptions

Floorplan Description

Rooms

Textual Property Features

Target Audience

AI Tags

Detected Visual Features

EPC Details

Nearby Schools

Nearest Bars And Restaurants

,,,,}

Nearest General Shops

,,}

Nearest Grocery shops

,,}

Nearest Supermarkets

,,}

Nearest Religious buildings

,,}

Nearest Medical buildings

,,,}

Nearest Airports

,}

Nearest Leisure Facilities

,,,,}

Nearest Tourist attractions

,,}

Nearest Train stations

,,,,}

Nearest Bus stations and stops

,,,,}

Nearest Hotels

,,}

Tags

Local Market Stats

Similar Properties

Meta

High Res Images

Compatible Images

Low res Images

Thumbnails

Raw Images

High Res Floorplan Images

Compatible Floorplan Images

Low res Floorplan Images

FloorplanImages Thumbnail

Raw Floorplan Images