Well-maintained 1970s semi with garage, driveway and scope to modernise.
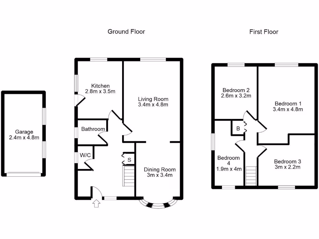
- Four bedrooms in dormer-style layout, flexible family space
- Through lounge/diner providing natural light and dual aspect
- Driveway for up to three cars plus detached garage
- Small overall footprint: approx. 808 sq ft and compact garden
- Single family bathroom; some cosmetic updating recommended
- Mains gas central heating; double glazing (install date unknown)
- Slow broadband speeds; consider if working from home
- EPC C, Council Tax Band C, Freehold
A rare four-bedroom dormer-style semi-detached bungalow on Moorside Road, offered with solid foundations and scope to personalise. The through lounge/diner and a kitchen overlooking the rear garden give practical family living space, while four bedrooms upstairs suit growing households or home-working. Off-road parking for up to three cars leads to a detached garage, a useful storage and workshop space.
The property has been well cared for but reflects its mid-1970s construction: the plot is small, rooms are modest in scale (approx. 808 sq ft) and there is a single family bathroom. Heating is by mains gas boiler with radiators and the home benefits from double glazing, though some cosmetic updating and modernisation would bring the best value.
Practical considerations include slow local broadband speeds and a compact rear garden — factors to note for home-workers or heavy internet users. Council Tax Band C and an EPC rating of C mean running costs are reasonable for the area. With Tottington Primary and other amenities within walking distance, this home suits buyers seeking a ready-to-move-into base to improve over time, or downsizers wanting single-floor living with bedroom flexibility upstairs.
Early viewing is advised to appreciate the location, parking provision and potential for refurbishment to increase space efficiency and modern comfort.
3 bedroom detached house for sale in Moorside Road, Tottington, Bury, BL8 3HR, BL8 — £230,000 • 3 bed • 1 bath • 721 ft²
3 bedroom semi-detached house for sale in Moorside Road, Tottington, Bury, Greater Manchester, BL8 — £220,000 • 3 bed • 1 bath • 1428 ft²
4 bedroom detached house for sale in Moorside Road, Tottington, Bury, Greater Manchester, BL8 — £350,000 • 4 bed • 3 bath • 1509 ft²
2 bedroom bungalow for sale in Hawthorn Crescent, Tottington, Bury, Greater Manchester, BL8 — £250,000 • 2 bed • 1 bath • 464 ft²
4 bedroom semi-detached house for sale in Woodstock Drive, Tottington, BL8 — £350,000 • 4 bed • 2 bath • 1098 ft²
3 bedroom semi-detached house for sale in Sandybrook Close, Tottington, Bury, Greater Manchester, BL8 — £260,000 • 3 bed • 1 bath • 1124 ft²


























































































