Immediate rental income with strong gross yield for buy-to-let investors.
Long lease: 136 years remaining (leasehold)
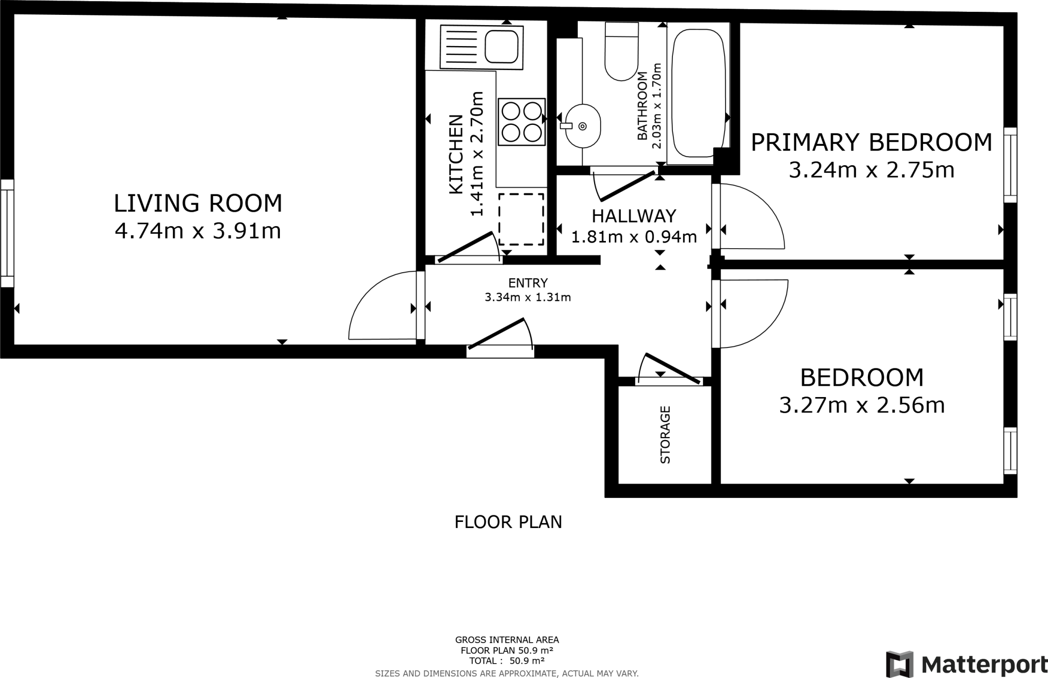
Priced at £105,000 with a current annual gross income of £8,700, this two-bedroom flat in Chesterfield offers a strong gross yield of about 8.3% for buy-to-let portfolios. The property is compact (approx. 603 sq ft) and sits within a contemporary brick apartment block with communal private parking and a shared rear garden. Its long lease (136 years remaining) makes it straightforward for lenders and investors to consider.
The flat is let and occupied by tenants who have lived there for a year and intend to remain. That means immediate rental income but also limited vacant possession flexibility — useful if you want an income-producing asset, less helpful if you need to refurbish or re-let at a higher rent in the short term. The layout is traditional: two bedrooms, a three-piece bathroom, lounge and kitchen.
Notable risks and practical points are stated plainly. The property is leasehold and a Buyers Premium will apply to secure the sale. The local crime level is recorded as very high, which could influence tenant demand, rental values, insurance costs and management approach. The apartment’s overall size is small, so ongoing rental growth may be limited without significant refurbishment.
Overall, the flat suits investors or portfolio buyers seeking an income-producing, low-management flat with immediate cashflow and a long lease. It will attract enquiries from serious investors and developers who can factor in crime statistics and any necessary refurbishment or management costs when assessing yield and total return.
2 bedroom apartment for sale in Oliver House, Wain Avenue, Chesterfield, S41 — £125,000 • 2 bed • 1 bath • 506 ft²
2 bedroom terraced house for sale in Foljambe Road, Chesterfield, S43 — £115,000 • 2 bed • 1 bath • 657 ft²
2 bedroom apartment for sale in Oliver House, Wain Avenue, Chesterfield, S41 — £115,000 • 2 bed • 1 bath • 541 ft²
1 bedroom apartment for sale in Horse Chestnut Close, Chesterfield, S40 — £99,950 • 1 bed • 1 bath • 409 ft²
3 bedroom flat for sale in Tapton Lock Hill, Chesterfield, Derbyshire, S41 — £115,000 • 3 bed • 2 bath • 828 ft²
2 bedroom flat for sale in Camlough Walk, Chesterfield, Derbyshire, S41 — £100,000 • 2 bed • 1 bath • 668 ft²






































































