Top-floor apartment with communal pool, tennis courts and private garage.
Top-floor three-bedroom apartment with private balcony and countryside views
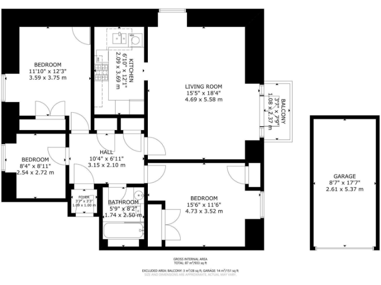
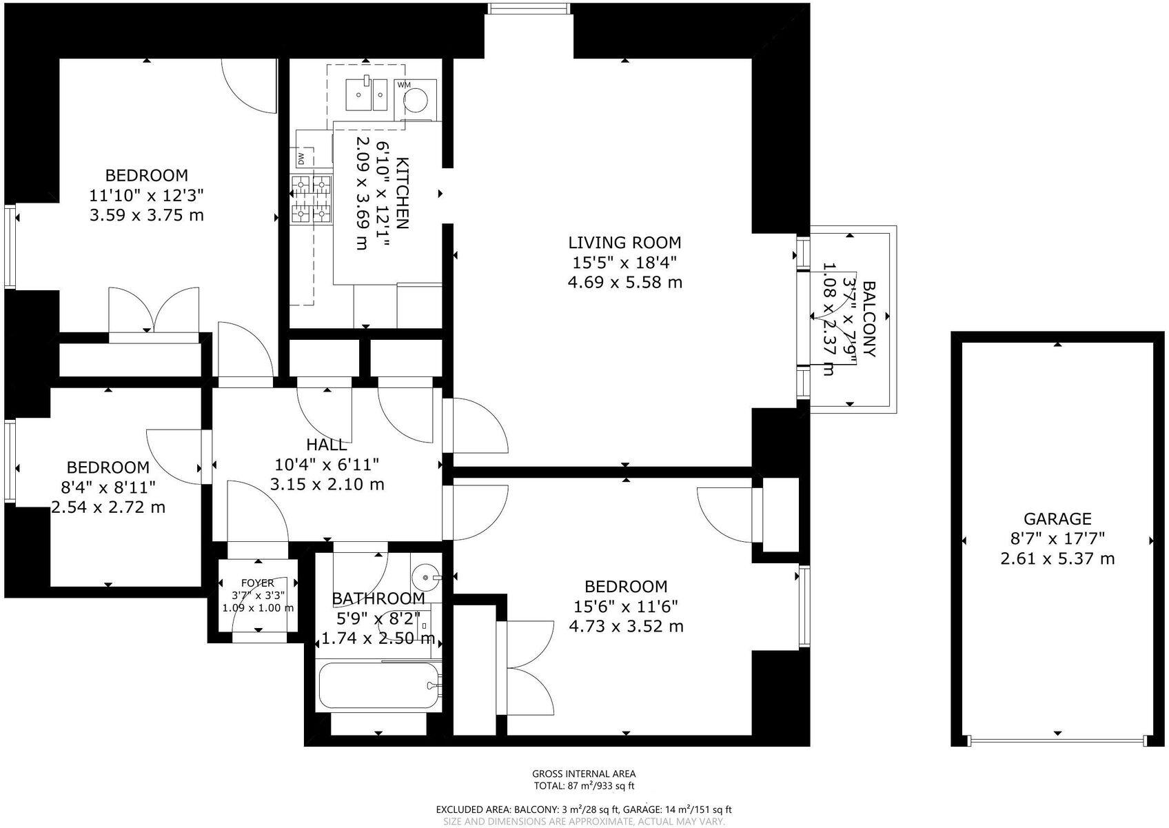
Set within the well-maintained Marchwood Gate development, this top-floor three-bedroom apartment offers bright living and far-reaching Sussex countryside views. The double-aspect 18 ft living room opens onto a private balcony, and the property benefits from extensive communal grounds with tennis courts and an indoor pool.
The layout includes two large double bedrooms with built-in wardrobes and eaves storage, a third bedroom, a modern family bathroom and a fitted kitchen with a Velux window. A private garage and plentiful off-road parking add practical convenience for residents.
Practical points to note: the property is leasehold, has a single bathroom for three bedrooms, and the living area has some sloping ceilings and average ceiling heights on the top floor. Council tax is above average and the EPC is rated C. Overall this is a comfortable, well-situated home suitable for downsizers or families seeking easy access to Chichester and the South Downs.
3 bedroom apartment for sale in Salthill Road, Northlands House Salthill Road, PO19 — £425,000 • 3 bed • 2 bath • 1279 ft²
2 bedroom ground floor flat for sale in Selham Close, Chichester, PO19 — £375,000 • 2 bed • 2 bath • 837 ft²
3 bedroom terraced house for sale in Marchwood Gate, Marchwood, Chichester, West Sussex, PO19 — £625,000 • 3 bed • 2 bath • 1259 ft²
3 bedroom apartment for sale in The Drive, Summersdale, Chichester, PO19 — £300,000 • 3 bed • 2 bath • 874 ft²
3 bedroom apartment for sale in The Penthouse Suite. 21 Lavant Road, Summersdale, Chichester, West Sussex, PO19 — £895,000 • 3 bed • 3 bath • 1872 ft²
2 bedroom apartment for sale in Broyle Road, Chichester, West Sussex, PO19 — £430,000 • 2 bed • 2 bath • 1035 ft²






































































