Extensive plot with scope to convert to a two-storey family home.
Private no-through road end plot, secluded large rear and side gardens
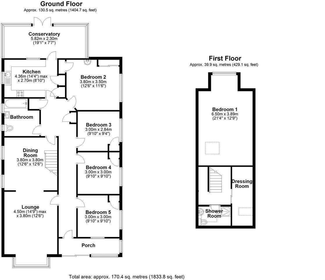
Set at the end of a private no-through road and moments from the River Thames, this detached five-bedroom bungalow sits on an extensive, secluded plot offering rare outdoor space in Staines-upon-Thames. The existing footprint provides generous living areas, a spacious lounge/diner, and a large garden ideal for children and entertaining. Broadband and mobile signals are excellent, and the property comes with private parking and a garage.
A notable advantage is the existing planning permission (ref 21/01147/HOU) recorded as DECIDED for a roof-raising and conversion to a two-storey house, plus side and rear extensions — offering clear scope to increase living space substantially (subject to completion of any remaining statutory steps). The plot and layout will particularly suit families wanting extra bedrooms or a home office, or buyers seeking a renovation project with sizeable uplift potential.
Buyers should note material factors plainly: this is a mid-20th-century bungalow and will benefit from modernization in places; some renovation and maintenance should be expected. The property sits in a medium flood-risk area and has an expensive council tax band, which are important for running-cost and insurance considerations.
Local amenities include several well-rated primary and secondary schools within easy reach, sports facilities and leisure options nearby, and good transport and digital connectivity. For a buyer wanting space, scope to extend and a peaceful cul-de-sac location, this property offers substantial potential with clear considerations around flood risk and refurbishment needs.
3 bedroom bungalow for sale in Riverside Close, Staines, Surrey, TW18 — £650,000 • 3 bed • 1 bath • 914 ft²
3 bedroom detached bungalow for sale in Glebe Road, Staines-upon-Thames, TW18 — £730,000 • 3 bed • 1 bath • 1485 ft²
5 bedroom bungalow for sale in Chertsey Lane, Staines-upon-Thames, Surrey, TW18 — £1,225,000 • 5 bed • 2 bath • 2123 ft²
3 bedroom bungalow for sale in Penton Avenue, Staines-upon-Thames, Surrey, TW18 — £600,000 • 3 bed • 2 bath • 1012 ft²
3 bedroom bungalow for sale in Laleham Road, Staines, Surrey, TW18 — £550,000 • 3 bed • 1 bath • 1031 ft²
3 bedroom detached house for sale in Dockett Eddy, Chertsey, Surrey, KT16 — £1,250,000 • 3 bed • 2 bath • 1673 ft²






























































































