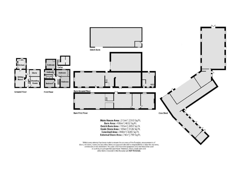
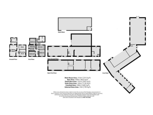
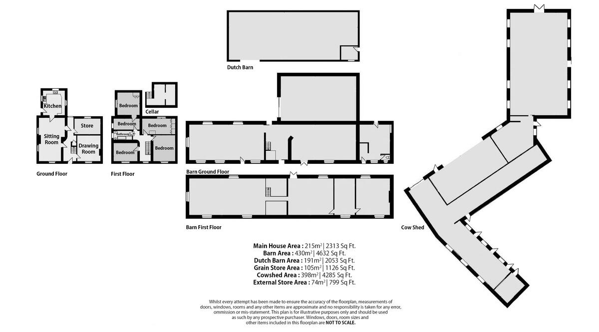
**Standout Features:**
- 5-bedroom detached farmhouse in need of renovation
- Stunning far-reaching views across 3.5 acres of land
- Additional 10.8 acres available via separate negotiation
- Significant redevelopment potential (subject to planning permission)
- Historic Grade II Listed property with attractive stone barn (4,600 sq. ft.)
- Peaceful hamlet location near Matlock with excellent schools
- Mains electricity; natural spring water; private septic tank drainage
**Summary:**
Discover the unique charm of Church Farm, nestled in the tranquil hamlet of Dethick, Matlock. This Grade II listed 5-bedroom detached farmhouse spans over 2,300 sq. ft. and is set on a sprawling 3.5-acre plot, offering breathtaking views that promise to inspire. While the farmhouse requires renovation, it presents a fantastic development opportunity for discerning buyers to create their dream home. The accompanying stone barn, with its high ceilings and historical features, is a valuable asset and provides an expansive canvas for your imagination.
Ideal for families or investors, the property is close to outstanding local schooling and the stunning landscapes of the Peak District, ensuring an idyllic lifestyle. Furthermore, with additional land available for negotiation, the possibilities for expansion and development are substantial (subject to planning approval). Although there are maintenance considerations including a septic tank and the need for renovations, this property stands as a rare chance to secure a piece of countryside history. Seize this opportunity to design a bespoke living space in a picturesque setting before it’s gone!
5 bedroom farm house for sale in Farley Farm, Farley, Matlock, DE4 — £2,100,000 • 5 bed • 4 bath • 958 ft²
5 bedroom detached house for sale in Rectory Farm, Church Road, Darley Dale, DE4 2GL, DE4 — £625,000 • 5 bed • 4 bath • 3367 ft²
3 bedroom detached house for sale in Dethick Lane, Dethick Matlock Derbyshire DE4 5GG, DE4 — £1,700,000 • 3 bed • 2 bath • 8551 ft²
8 bedroom detached house for sale in Peak Forest, Buxton, Derbyshire, SK17 — £1,400,000 • 8 bed • 4 bath • 5332 ft²
6 bedroom detached house for sale in Brailsford, Ashbourne, Derbyshire, DE6 — £1,650,000 • 6 bed • 4 bath • 6783 ft²
5 bedroom farm house for sale in The Grange, Peak Forest, Buxton, SK17 — £850,000 • 5 bed • 2 bath • 2702 ft²














































































































