Spacious four-bedroom detached house on a large, well-located plot ideal for families.
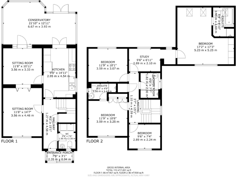
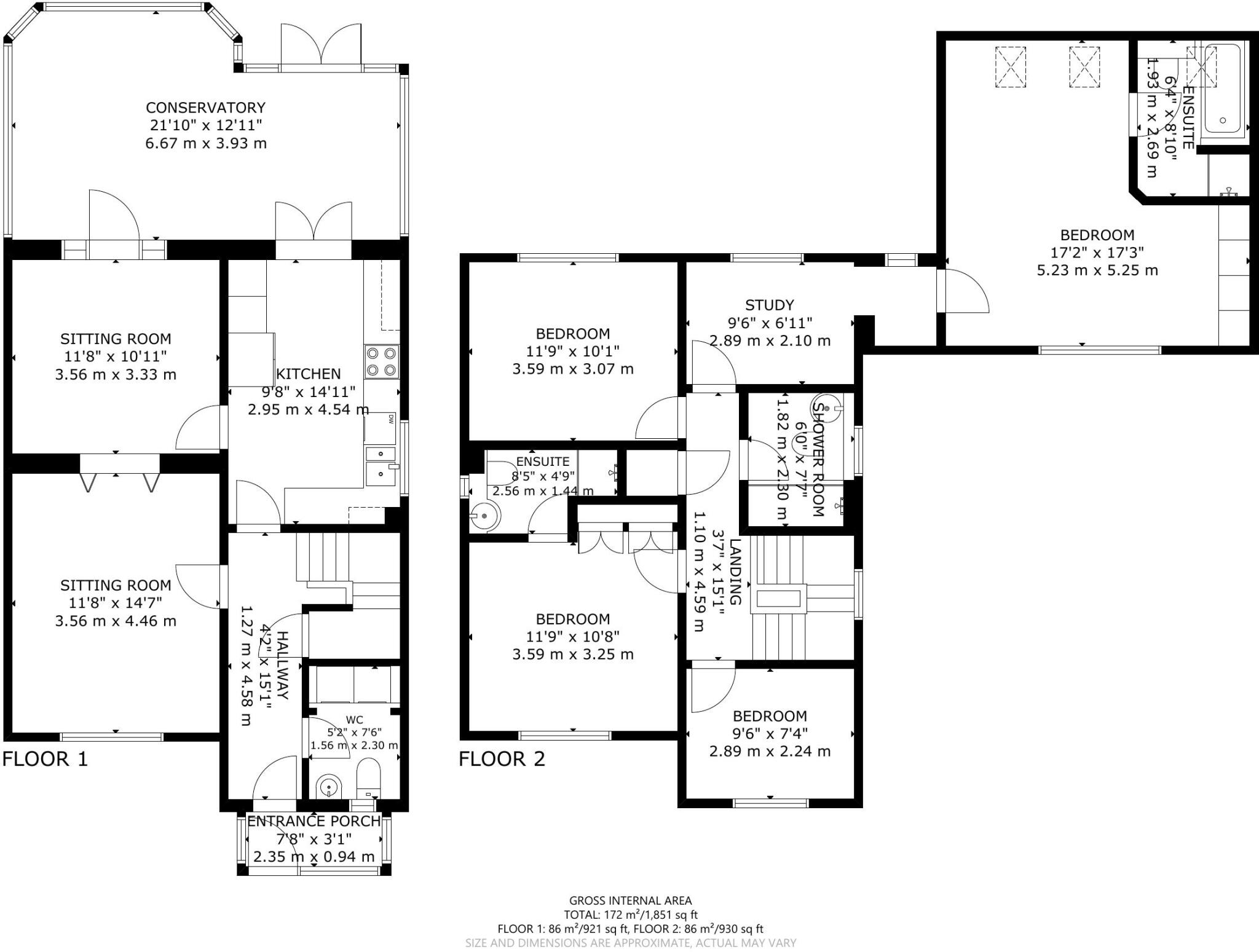
Extended four-bedroom detached house with vaulted main bedroom and two en suites
Large, well-screened rear garden with patio, decking and lawn
Double garage with sink, shelving, power and rear access
Driveway parking for several cars; large plot
Close walking distance to nursery, primary and outstanding secondary school
Double glazed windows and gas central heating (boiler and radiators)
Boarded loft with pull-down ladder for extra storage
Council Tax Band F (expensive); average mobile signal
A considerably extended four-bedroom detached house offering flexible family accommodation in a well-regarded Uckfield neighbourhood. The layout includes a large conservatory, separate sitting and dining rooms, and a main bedroom with vaulted ceiling and en suite, providing comfortable space for daily family life and entertaining.
Outside, the property sits on a large plot with a well-tended rear garden, paved patio, decked seating and off-street parking for several cars plus a double garage with utility fittings. Local schools, leisure facilities and the town centre are within easy reach, making the location especially convenient for families.
Practical features include double glazing, gas central heating, boarded loft storage and an EPC rating of C. Notable considerations are the council tax Band F (expensive) and average mobile reception; buyers should also note the house dates from the 1980s and while well-presented, some buyers may wish to update finishes to personal taste.
4 bedroom detached house for sale in Castle Rise, Ridgewood, Uckfield, East Sussex, TN22 — £535,000 • 4 bed • 2 bath • 1213 ft²
3 bedroom detached house for sale in Claremont Rise, Uckfield, TN22 2AH, TN22 — £600,000 • 3 bed • 2 bath • 1268 ft²
4 bedroom detached house for sale in Coopers Green, Uckfield, East Sussex, TN22 — £850,000 • 4 bed • 4 bath • 1931 ft²
4 bedroom link detached house for sale in Wilson Grove, Uckfield, TN22 — £495,000 • 4 bed • 2 bath • 1608 ft²
4 bedroom detached house for sale in Timberley Gardens, Uckfield, TN22 — £775,000 • 4 bed • 2 bath • 1997 ft²
4 bedroom detached house for sale in Wilson Grove, Uckfield, East Sussex, TN22 — £575,000 • 4 bed • 2 bath • 1287 ft²






























































































