YO19 5UD - 4 bedroom detached house for sale in Main Street, Holtby, Y…

View on Property Piper

4 bedroom detached house for sale in Main Street, Holtby, York, YO19 5UD, YO19

Summary - SPRING COTTAGE, MAIN STREET, YORK, HOLTBY YO19 5UD

4 bed 2 bath Detached

Grade II listed detached cottage on large mature plot
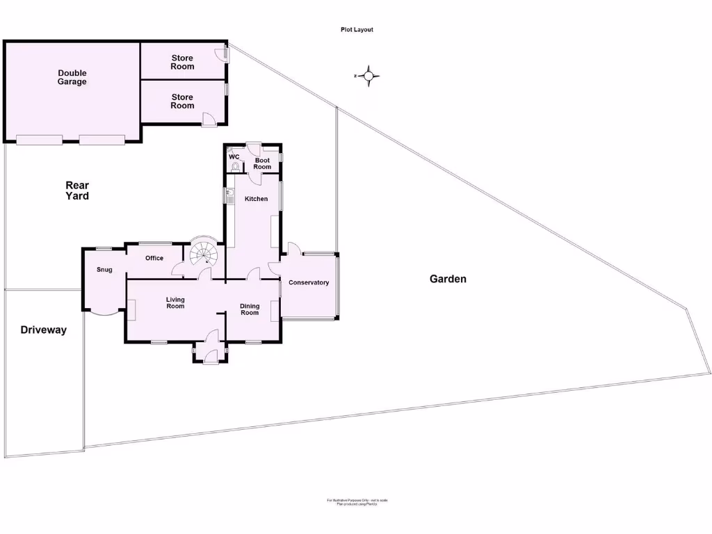
An attractive Grade II listed four-bedroom detached cottage set in generous, mature gardens in the sought-after village of Holtby, five miles east of York. The house sits back from Main Street behind a gated gravel drive with ample parking and a double garage; well-stocked lawns, a stone-flagged seating area, greenhouse and brick outbuildings give the plot strong outdoor appeal.

Internally the layout suits family living: a living room with stone fireplace, separate dining room, kitchen breakfast room opening to a large conservatory, ground-floor office and snug, plus a boot room and WC. A striking double-height window with spiral staircase provides characterful circulation; the principal bedroom benefits from an en-suite and all bedrooms enjoy garden views.

Important practical points: the property is listed which will restrict alterations and could complicate consenting and maintenance. Heating is oil-fired and many windows are original single-glazed sliding sashes, so upgrading for efficiency will be needed. Council tax is high and the listed status means maintenance can be more costly.

This is a character-rich home for buyers who value setting and period detail and who are prepared for the responsibilities of a listed property. Offered chain-free, it presents immediate occupation potential and longer-term scope to sensitively update services and windows where permitted.

Property Details

Brochure Descriptions

Image Descriptions

Floorplan Description

Rooms

Textual Property Features

Detected Visual Features

Nearby Schools

Nearest Bars And Restaurants

,,,,}

Nearest General Shops

,,}

Nearest Grocery shops

,,}

Nearest Supermarkets

,,}

Nearest Religious buildings

,,}

Nearest Medical buildings

,,,}

Nearest Leisure Facilities

,,,,}

Nearest Tourist attractions

,,}

Nearest Train stations

,,,,}

Nearest Bus stations and stops

,,,,}

Nearest Hotels

,,}

Tags

Local Market Stats

Meta

High Res Images

Compatible Images

Low res Images

Thumbnails

Raw Images

High Res Floorplan Images

Compatible Floorplan Images

Low res Floorplan Images

FloorplanImages Thumbnail

Raw Floorplan Images