Light-filled apartment with parking and residents’ facilities near major transport and jobs.
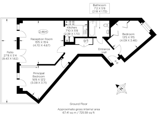
Two double bedrooms and one modern bathroom
Approx. 725 sq ft — average inner-London apartment size
Long lease: 974 years remaining
Secure allocated off-street parking included
Residents’ facilities: gym, sauna and on-site services
High service charge: £4,588 per year
Ground rent £1,155 per year (noted as expensive)
Heating is electric room heaters; glazing predates 2002
This well-presented two-bedroom apartment in the Naxos Building offers a practical first home near Canary Wharf’s jobs and transport hub. At about 725 sq ft, the layout suits a couple or sharers wanting easy access to riverside green space and communal facilities such as a gym, sauna and on-site resident services.
The property benefits from a long lease (974 years) and secure allocated off-street parking — rare in central locations. Large windows and a balcony/courtyard aspect provide light and pleasant garden views. Flooding risk is very low and broadband and mobile signals are strong.
Buyers should note the material running costs: a high service charge (£4,588 pa) and substantial ground rent (£1,155 pa). Heating is by electric room heaters (no communal gas or central system) and glazing predates 2002, which may affect energy efficiency. Council tax band is expensive.
Overall this apartment is a convenient, low-risk entry into Canary Wharf living with immediate rental or owner-occupier potential, but budget for above-average service charges and electric heating costs.
2 bedroom flat for sale in Naxos Building,
4 Hutchings Street, E14 — £485,000 • 2 bed • 1 bath • 743 ft²
2 bedroom flat for sale in Naxos Building, Naxos Building, London E14 — £380,000 • 2 bed • 1 bath • 680 ft²
2 bedroom flat for sale in Hutchings Street, London, E14 — £475,000 • 2 bed • 1 bath • 625 ft²
2 bedroom apartment for sale in Hutchings Street, London, E14 — £555,000 • 2 bed • 2 bath • 732 ft²
1 bedroom flat for sale in Hutchings Street, E14 — £315,000 • 1 bed • 1 bath • 486 ft²
2 bedroom apartment for sale in Anchorage Point, Cuba Street, London, E14 — £575,000 • 2 bed • 2 bath • 937 ft²


















































































