G77 5HL - 3 bed spacious ground floor flat in East Renfrewshire, G77…

View on Property Piper

3 bedroom flat for sale in Teviotdale, Kirkvale Court, Newton Mearns, G77

Summary - 1, TEVIOTDALE, KIRKVALE COURT, GLASGOW, NEWTON MEARNS G77 5HL

3 bed 1 bath Flat

Roomy three-bedroom apartment with garage and communal gardens.
Preferred ground-floor flat with easy access
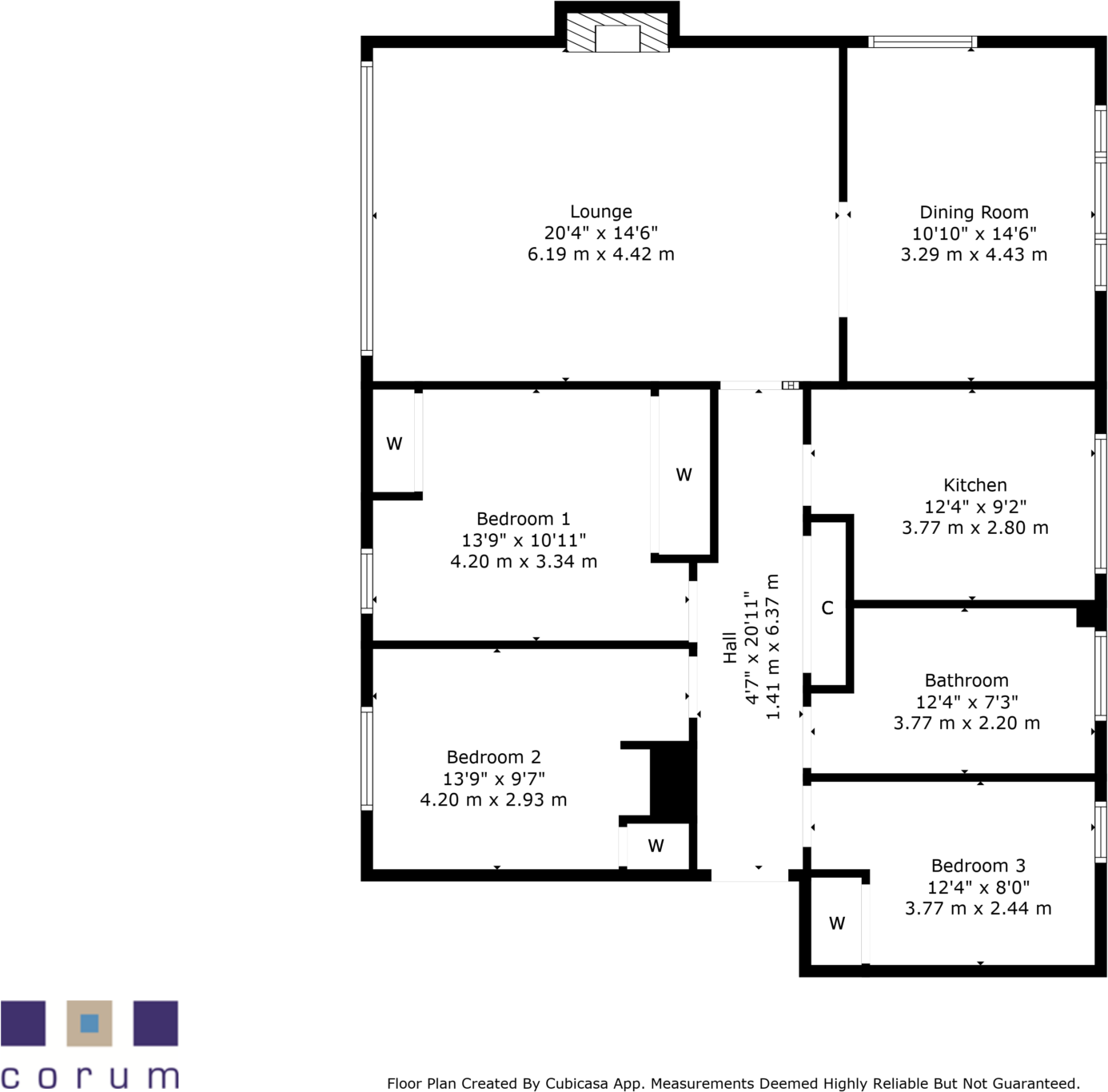
Set on the preferred ground floor, this flexible three-bedroom, two-reception apartment offers comfortable, well-proportioned living within a popular Newton Mearns pocket. The layout includes a generous lounge, separate dining room, fitted kitchen, principal bedroom with storage and two further good-sized bedrooms — a practical family arrangement with scope to modernise to personal taste.

Outside, well-tended communal gardens, resident parking and a private lock-up garage add useful everyday convenience. The building benefits from secure entry, gas central heating and double glazing, making it ready for move-in with straightforward improvements rather than major works. The apartment’s footprint (approximately 1,173 sq ft) delivers space not always found at this price point.

Honest considerations: the property has a single shower room only, décor is dated in places and the energy rating is Band D — some upgrading would improve comfort and running costs. Council tax is above average. Local data includes mixed indicators of affluence and deprivation, so buyers should check specific neighbourhood details relevant to schools and services.

This home suits families or those seeking a roomy, ground-floor flat with garage parking and garden access, who are prepared to refresh interiors. A viewing will best reveal the scale and practical strengths on offer.

Property Details

Brochure Descriptions

Image Descriptions

Floorplan Description

Rooms

Textual Property Features

Target Audience

AI Tags

Detected Visual Features

Nearest Bars And Restaurants

,,,,}

Nearest General Shops

,,}

Nearest Grocery shops

,,}

Nearest Supermarkets

,,}

Nearest Religious buildings

,,}

Nearest Medical buildings

,,,}

Nearest Airports

,}

Nearest Leisure Facilities

,,,,}

Nearest Tourist attractions

,,}

Nearest Train stations

,,,,}

Nearest Bus stations and stops

,,,,}

Nearest Hotels

,,}

Tags

Local Market Stats

AirBnB Data

Similar Properties

Meta

High Res Images

Compatible Images

Low res Images

Thumbnails

Raw Images

High Res Floorplan Images

Compatible Floorplan Images

Low res Floorplan Images

FloorplanImages Thumbnail

Raw Floorplan Images