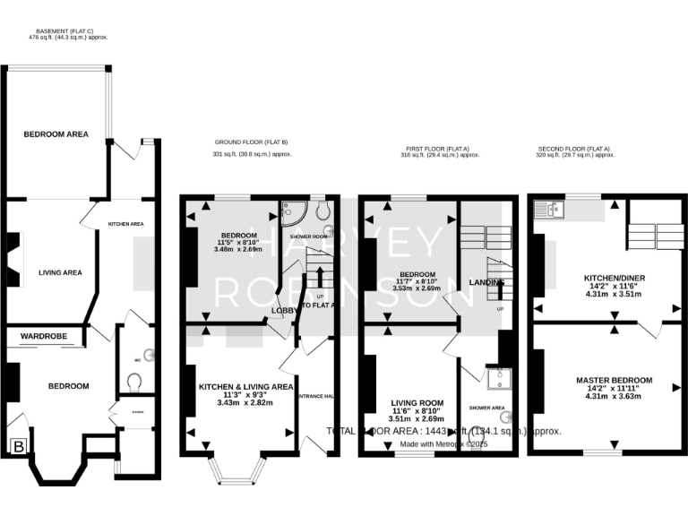
Three flats, garden and garage — ready-made income in central Cambridge for cash buyers..
- Converted Victorian townhouse: three self-contained flats
- Sold with tenants in situ; immediate rental income
- Ground-floor flat with private garden, garage and parking space
- No building-regulation certificates for conversion; cash purchase only
- EPCs range C–D; one flat uses electric heating
- Permit and on-street parking nearby; allocated parking included
- Small plot and compact internal footprints throughout
- Area records higher crime; factor for insurance and management
A substantial four-storey Victorian mid-terrace converted into three self-contained flats — offered as a ready-made rental investment with tenants in situ. The building includes a ground-floor flat with a rare private garden and direct garage access, an allocated parking space, and permit parking nearby, making it practical for tenants and useful for immediate income.
The property sits close to Mitcham's Corner and Victoria Road, within easy walking or cycling distance of Cambridge city centre, Cambridge North station and major employment hubs including the Science Park. Fast broadband and excellent mobile signal suit students, professionals and tech-sector tenants; nearby schools and green spaces add wider rental appeal.
Important considerations: the conversion into three dwellings was completed without building-regulation certificates, so the sale is for cash purchasers only. There is a tenants-in-situ sale and some flats have different heating systems (one electric), EPCs range C–D, and the area records higher crime levels — all factors for managing running costs, compliance checks and insurance.
This is a straightforward buy-to-let opportunity for an investor or landlord prepared to take on regulatory checks and potential upgrades. With current income in place and clear scope to increase rents after refurbishment or compliance work, the property suits buyers prioritising immediate yield and long-term capital growth in Cambridge.
3 bedroom house for sale in Victoria Street, Cambridge, Cambridgeshire, CB1 — £750,000 • 3 bed • 2 bath • 1267 ft²
5 bedroom detached house for sale in Chesterton Road, Cambridge, CB4 — £950,000 • 5 bed • 4 bath • 710 ft²
8 bedroom town house for sale in Chesterton Road, Cambridge, CB4 — £900,000 • 8 bed • 3 bath • 1910 ft²
1 bedroom property for sale in High Street, Chesterton, Cambridge, CB4 — £750,000 • 1 bed • 1 bath • 1959 ft²
House for sale in 99 Victoria Road, Cambridge, Cambridgeshire, CB4 3BS, CB4 — £700,000 • 1 bed • 1 bath • 1835 ft²
3 bedroom terraced house for sale in Paradise Street, Cambridge, CB1 — £550,000 • 3 bed • 2 bath • 1464 ft²






















































































































