**Standout Features:**
- Newly built three-bedroom detached house
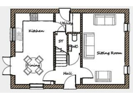
- Stylish open-plan kitchen/diner with integrated appliances and French doors to garden
- Designer ensuite in the master bedroom and premium sanitaryware throughout
- Detached garage and driveway offering ample parking for two cars
- Energy efficiency rating predicted at 'B'
- 10-year NHBC warranty for peace of mind
- Located in a quiet, affluent area near excellent schools
**Potential Considerations:**
- As a new build, the property may still be settling into the environment
- Images are representative; actual finishes may vary
Experience modern living in this stunning new build located off Uppingham Road, Oakham. This three-bedroom detached home boasts a stylish open-plan kitchen/diner equipped with sleek integrated appliances, ideal for entertaining and family gatherings. French doors create a seamless transition to the turfed garden, enhancing the indoor-outdoor lifestyle. The master bedroom offers a designer ensuite, while two additional double bedrooms provide ample space for family or guests. With a detached garage and a driveway accommodating two cars, convenience is paramount.
Nestled in a serene neighborhood surrounded by lush greenery, the property also benefits from a very low local crime rate, making it perfect for families seeking security and comfort. With nearby access to excellent schools and community amenities, this charming house is a rare find that combines traditional architectural elegance with modern conveniences. Don't miss the chance to own this energy-efficient home that promises both comfort and future potential—ideal for first-time buyers and investors alike.
3 bedroom detached house for sale in Off Uppingham Road,
Oakham,
Rutland,
LE15 6JL
, LE15 — £384,995 • 3 bed • 1 bath • 1060 ft²
4 bedroom detached house for sale in Off Uppingham Road,
Oakham,
Rutland,
LE15 6JL
, LE15 — £549,995 • 4 bed • 1 bath • 1435 ft²
4 bedroom detached house for sale in Off Uppingham Road,
Oakham,
Rutland,
LE15 6JL
, LE15 — £529,995 • 4 bed • 1 bath
4 bedroom detached house for sale in Off Uppingham Road,
Oakham,
Rutland,
LE15 6JL
, LE15 — £529,995 • 4 bed • 1 bath
4 bedroom detached house for sale in Off Uppingham Road,
Oakham,
Rutland,
LE15 6JL
, LE15 — £549,995 • 4 bed • 1 bath • 1435 ft²
4 bedroom detached house for sale in Off Uppingham Road,
Oakham,
Rutland,
LE15 6JL
, LE15 — £549,995 • 4 bed • 1 bath • 1478 ft²






























































































































