M33 3QZ - 3 bed brooklands detached home in Wythenshawe And Sale East…

View on Property Piper

3 bedroom detached house for sale in Westwood Drive, Sale, M33

Summary - Westwood Drive, Sale, M33 M33 3QZ

3 bed 1 bath Detached

Spacious three-bedroom property with strong extension potential and excellent local schools.
Large rear and front gardens with extension potential
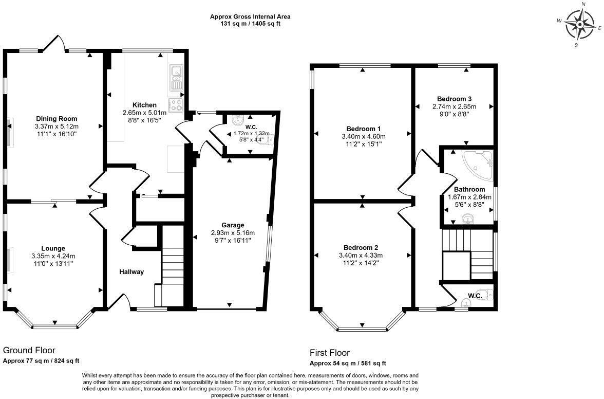
Set on a quiet residential road in sought-after Brooklands, this three-bedroom detached home offers generous living space across approximately 1,405 sq ft. Ground floor rooms include a bay-fronted lounge, separate dining room, fitted kitchen and a ground-floor WC; upstairs are three bedrooms, a family bathroom and an additional WC. The plot includes off-street parking, an integral garage and large front and rear gardens, offering scope for outdoor family life and gardening.

The property dates from the mid-20th century and retains period character and a solid footprint that will appeal to buyers wanting to personalise a home. There is strong potential for side, rear or loft extensions (subject to planning) to increase living space. Broadband speeds are fast and mobile signal is excellent, supporting homeworking and connected family life.

Practical considerations are clear: the house presents as a tidy but dated fixer-upper. The EPC is D, walls are cavity construction with assumed no insulation, and some cosmetic and modernisation work is likely needed throughout. Buyers should factor in updating the heating and insulation to improve efficiency. Overall, the home suits families seeking space, top local schools and long-term value through renovation or extension.

Property Details

Image Descriptions

Floorplan Description

Rooms

Textual Property Features

Target Audience

AI Tags

Detected Visual Features

EPC Details

Nearby Schools

Nearest Bars And Restaurants

,,,,}

Nearest General Shops

,,}

Nearest Grocery shops

,,}

Nearest Supermarkets

,,}

Nearest Religious buildings

,,}

Nearest Medical buildings

,,,}

Nearest Airports

}

Nearest Leisure Facilities

,,,,}

Nearest Tourist attractions

,,}

Nearest Train stations

,,,,}

Nearest Bus stations and stops

,,,,}

Nearest Hotels

,,}

Tags

Local Market Stats

AirBnB Data

Similar Properties

Meta

High Res Images

Compatible Images

Low res Images

Thumbnails

Raw Images

High Res Floorplan Images

Compatible Floorplan Images

Low res Floorplan Images

FloorplanImages Thumbnail

Raw Floorplan Images