**Standout Features:**
- Stunning Grade II Listed building dating back to the 1820s
- Newly refurbished four-bedroom main house (2017)
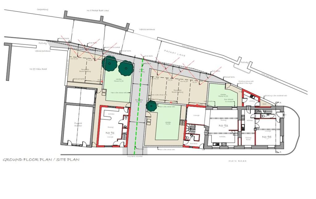
- Full planning permission for two additional residential dwellings on site
- Off-street parking and garden space approved for each property
- Situated in a vibrant village with family-friendly amenities and community spirit
- Chain free sale
Discover the charm of this beautifully refurbished four-bedroom Georgian semi-detached house, set in the heart of Bolton-le-Sands. With a rich history dating back to the 1820s, this Grade II Listed property marries classic character with modern comforts. Enjoy spacious living areas, including a bright lounge and an impressive master suite with ensuite, complemented by two double bedrooms with picturesque canal and sea views.
The available planning permission presents an incredible opportunity for developers or investors, allowing for the construction of a three-bedroom semi-detached home and a detached two-bedroom residence on site. Picture potential rental income or family expansion in this thriving community known for its local school, parks, and leisure facilities.
While the main house is ready for you to move in and enjoy, some external renovations related to its listed status may require attention. With off-street parking and extensive garden space included in the approved plans, this property offers both comfort and future growth potential. Act fast—properties with such versatility and location are rare to come by!
3 bedroom flat for sale in Main Road, Bolton Le Sands, Carnforth, LA5 — £210,000 • 3 bed • 1 bath • 1603 ft²
6 bedroom detached house for sale in Main Road, Bolton Le Sands, Carnforth, LA5 — £680,000 • 6 bed • 2 bath • 2761 ft²
2 bedroom end of terrace house for sale in St Michaels Grove, Bolton Le Sands, Carnforth, LA5 8JB, LA5 — £330,000 • 2 bed • 2 bath
2 bedroom terraced house for sale in Cross Hill Court, Bolton le Sands, Carnforth, LA5 — £225,000 • 2 bed • 1 bath • 635 ft²
4 bedroom terraced house for sale in Town End, Bolton Le Sands, Carnforth, LA5 — £375,000 • 4 bed • 1 bath • 1432 ft²
3 bedroom detached house for sale in Bye Pass Road, Bolton Le Sands, Carnforth, LA5 — £369,000 • 3 bed • 2 bath • 1120 ft²


















































































































