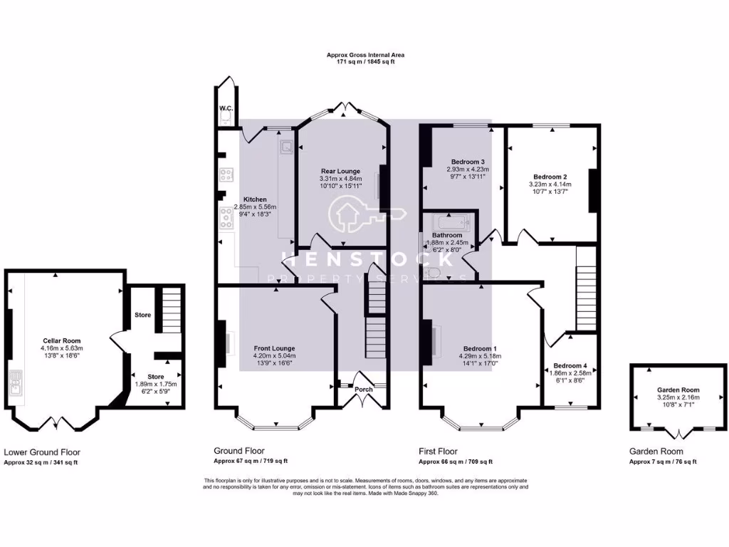
Characterful family home with cellar and garden room near Manchester centre.
Four double bedrooms retaining original fireplaces
This handsome four-bedroom Victorian semi-detached home blends restored period detail with recent renovations. Original stained glass, ornate fireplaces and a timber staircase sit alongside a newly fitted kitchen with granite worktops and Karndean flooring, creating comfortable living for families who value character.
Practical space includes two reception rooms, a useful cellar with two rooms for storage or a workshop, and a low-maintenance rear garden with an engineered timber garden room. The property is only 3.5 miles from Manchester city centre and close to several primary and secondary schools, making it convenient for commuting and family life.
Important practical points: the property is leasehold with a nominal ground rent of £5 per year and has a single family bathroom. The EPC is rated D and the cavity walls are assumed to have no insulation, so heating efficiency could be improved. The wider area shows high deprivation despite very low local crime rates.
Overall this is a spacious, characterful family home offering immediate move-in quality in many rooms, plus clear scope to improve energy performance and add further value through targeted insulation or minor upgrades.
5 bedroom semi-detached house for sale in Belgrave Crescent, Eccles, M30 — £650,000 • 5 bed • 4 bath
5 bedroom semi-detached house for sale in Victoria Grove, Fallowfield, Greater Manchester, M14 — £650,000 • 5 bed • 3 bath • 3161 ft²
4 bedroom semi-detached house for sale in Upper Chorlton Road, Whalley Range, Lancashire, M16 — £575,000 • 4 bed • 2 bath • 1862 ft²
4 bedroom semi-detached house for sale in Grosvenor Road, Whalley Range, M16 — £600,000 • 4 bed • 3 bath
3 bedroom terraced house for sale in Woodleigh Street, Manchester, M9 — £185,000 • 3 bed • 1 bath • 1420 ft²
4 bedroom semi-detached house for sale in Middleton Road, Chadderton, Oldham, Greater Manchester, OL9 — £300,000 • 4 bed • 2 bath • 1370 ft²






















































































































