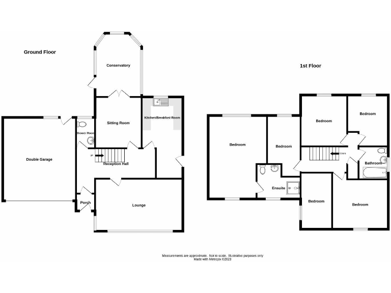
**Standout Features:**
- Spacious five-bedroom detached residence
- Master bedroom with dressing room and en-suite
- Two reception rooms plus a vibrant conservatory
- Extensive driveway and large garage for ample parking
- Well-maintained garden with patio for outdoor dining
- Owned solar panels for energy efficiency
- Close to schools, parks, and local attractions
This stunning five-bedroom detached home on Darbys Hill Road in Tividale, Oldbury, is a rare find for families seeking space and comfort. The incredibly spacious layout boasts two expansive reception rooms, including a delightful conservatory that seamlessly opens to a well-maintained rear garden—perfect for alfresco dining and family gatherings. The master suite features its own dressing room and en-suite shower room, ensuring privacy and convenience.
With an extensive driveway capable of accommodating multiple vehicles and a large garage, storage will never be an issue. Additionally, the home benefits from energy-efficient solar panels and is situated within a highly sought-after residential area, surrounded by excellent schools and local amenities like Dudley Zoo and the Black Country Museum.
While the property is in excellent condition, potential buyers should note the average-sized rooms may require personal touches to truly reflect their style. Don't miss the opportunity to secure this wonderfully extended home—properties like this don't come around often!
5 bedroom detached house for sale in Darbys Hill Road, Tividale, Oldbury, West Midlands, B69 — £550,000 • 5 bed • 2 bath • 1890 ft²
5 bedroom detached house for sale in Newfield Drive, Kingswinford, DY6 — £419,950 • 5 bed • 2 bath • 1516 ft²
4 bedroom detached house for sale in Hadzor Road, Oldbury, B68 — £550,000 • 4 bed • 1 bath • 1831 ft²
4 bedroom detached house for sale in Mallen Drive, TIVIDALE, Oldbury., B69 — £400,000 • 4 bed • 3 bath • 1012 ft²
3 bedroom detached house for sale in TIVIDALE, Off Oakham Road, Hoylake Drive, B69 — £325,000 • 3 bed • 1 bath • 716 ft²
5 bedroom detached house for sale in Woodgreen Road, Oldbury, B68 — £545,000 • 5 bed • 3 bath • 1941 ft²


















































































