Architect-designed five-bed home with gardens, outbuilding, solar and EV charging.
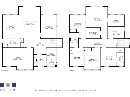
Approximately 3,200–3,300 sq ft of architect-designed accommodation
Five bedrooms, four/ five bathrooms; principal ensuite with dressing room
Spacious open-plan kitchen/dining/living with bifold doors to garden
Outbuilding with power, water and light — versatile workshop or office
Electric gated driveway with multiple parking spaces and EV charging
12 solar panels; A-rated gas central heating and double glazing
Generous, landscaped, low-maintenance rear garden with deck and patio
Local area classed as very deprived; council tax noted as quite expensive
Set behind electric gates on a substantial plot, this architect-designed detached villa offers flexible family living across approximately 3,200–3,300 sq ft. The ground floor centres on a generous open-plan kitchen / dining / living space with bifold doors to a private, low-maintenance landscaped garden — ideal for everyday family life and entertaining. A separate formal lounge, home office/study and utility room increase practicality.
Upstairs the principal suite includes an ensuite and dedicated dressing room; four further bedrooms (two with ensuites) and a family bathroom provide comfortable space for a growing household or multigenerational living. Built-in fittings, Neff appliances, Silestone worktops and engineered oak flooring give a contemporary, well-specified finish throughout.
Outside there is a long driveway with EV charging, an outbuilding with power, water and light for hobbies or home business use, and 12 fitted solar panels that reduce running costs. Gas central heating (A rated) and double glazing are additional efficiency benefits; there is no flooding risk recorded.
Notable negatives you should weigh: the wider local data records a very deprived area classification and council tax is described as quite expensive. Buyers should also note a slight variation in reported overall size (approx. 3,200–3,300 sq ft). Overall, this is a substantial, contemporary family home offering privacy, strong energy features and flexible living space, suited to buyers prioritising space and modern specification.
5 bedroom detached house for sale in 33 Acton Gardens, Jackton, East Kilbride, G75 — £475,000 • 5 bed • 5 bath • 2390 ft²
5 bedroom detached house for sale in 1 Highbury Grove, Jackton, G75 — £370,000 • 5 bed • 3 bath • 1442 ft²
6 bedroom detached house for sale in 21 Viewfield Gardens, Nerston, G74 — £550,000 • 6 bed • 5 bath • 2777 ft²
5 bedroom detached house for sale in Maxwellton Gate, East Kilbride, Glasgow, G74 — £575,000 • 5 bed • 4 bath • 3983 ft²
5 bedroom detached house for sale in Newhouse Road, Jacktonhall, G75 8RQ, G75 — £975,000 • 5 bed • 4 bath • 2582 ft²
4 bedroom detached house for sale in Birniehill Road, Hareshaw, ML1 5GX, ML1 — £475,000 • 4 bed • 4 bath • 3143 ft²














































































































































































































































































































































































































































































































































































































































































