Bright three-bed duplex with garden and two parking spaces, ideal for family life and commuting..
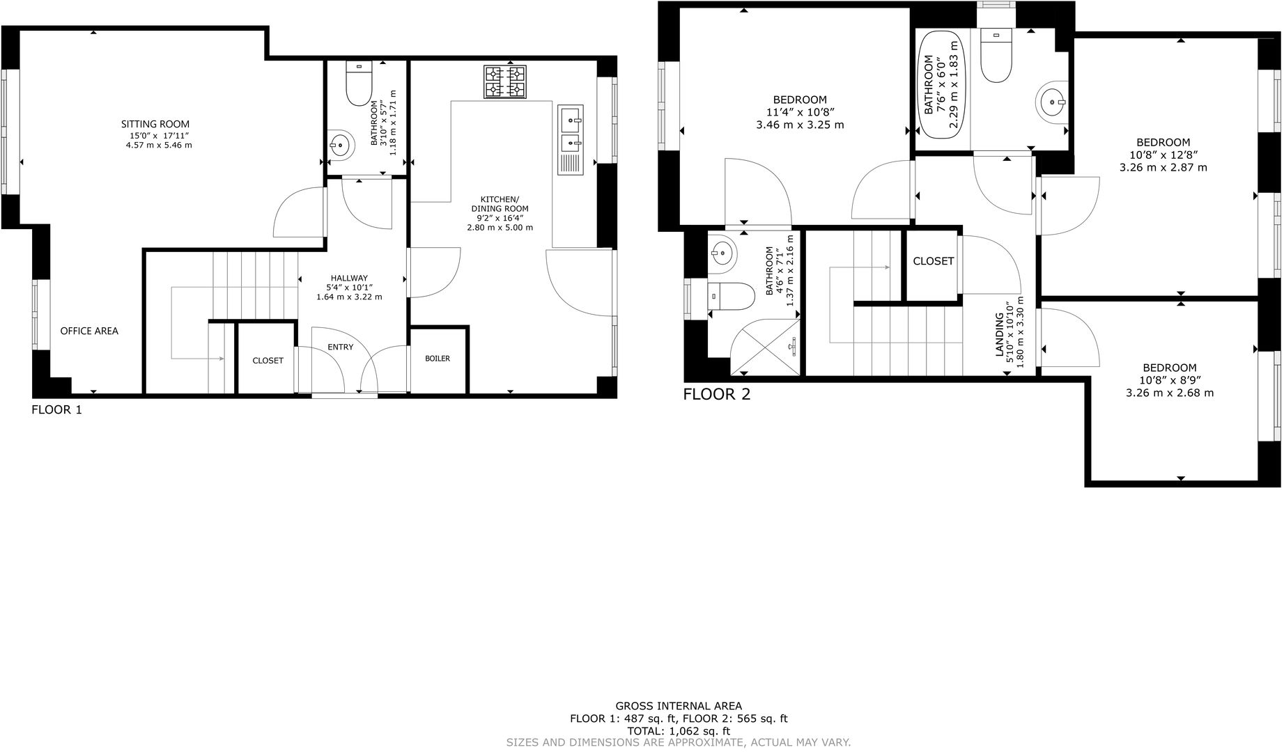
Three-bedroom duplex with over 1,000 sq ft of accommodation
Private south-facing garden, rare for an apartment
Two allocated off-street parking spaces
Master bedroom with en-suite; separate family bathroom
Built post-2007; double glazing and air-source heat pump
Leasehold with 109 years remaining; £100 ground rent
Above-average council tax payable
Local area records above-average crime levels
Spire View Flat 2 is a well-presented three-bedroom duplex offering over 1,000 sq ft and a private south-facing garden — rare for apartment living. The split-level layout gives a clear separation between living and sleeping areas, with a generous sitting room, study area and a modern kitchen-diner that opens directly onto the garden. Two allocated off-street parking spaces add convenience for families or commuters.
The first floor houses a principal bedroom with en-suite shower, a double and a single bedroom plus a family bathroom. Built after 2007 with double glazing and electric warm-air heating augmented by an air-source heat pump, the apartment scores reasonably on energy efficiency (EPC C). Communal grounds are available for residents as well.
This leasehold home (109 years remaining) sits in Temple Cowley, close to primary schools rated Good and within easy reach of the city, hospitals and business parks. Local shops, Templars Shopping Park and frequent bus links make daily life straightforward for commuters and families. Broadband and mobile signals are strong.
Buyers should note practical costs: above-average council tax, a small ground rent (£100), and the property is leasehold rather than freehold. The area records above-average crime levels, which some buyers will want to consider alongside the otherwise affluent neighbourhood and strong local amenities.
2 bedroom duplex for sale in Goodey Close, Littlemore, Oxford, OX4 — £280,000 • 2 bed • 1 bath • 822 ft²
2 bedroom apartment for sale in Reliance Way, East Oxford, OX4 — £325,000 • 2 bed • 2 bath • 773 ft²
2 bedroom flat for sale in Headington, Oxford, OX3 — £260,000 • 2 bed • 2 bath • 791 ft²
2 bedroom flat for sale in Headington, Oxford, OX3 — £260,000 • 2 bed • 2 bath • 699 ft²
2 bedroom apartment for sale in Coles Court, Yarnells Hill, OX2 — £350,000 • 2 bed • 2 bath • 806 ft²
2 bedroom apartment for sale in North Way, Headington, Oxford, OX3 — £250,000 • 2 bed • 2 bath • 705 ft²






















































































