**Standout Features:**
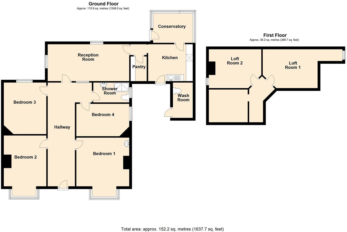
- Spacious 4-bedroom semi-detached bungalow with two loft rooms
- Large reception room and conservatory providing ample natural light
- Generous driveway and garage with power and lighting
- Close proximity to town center and beach
- Potential for renovation and customization
**Notable Concerns:**
- Dated 1970s kitchen in need of modernization
- High crime rate in the local area
- Slow broadband speeds
Discover this remarkably spacious four-bedroom semi-detached bungalow located on George Street, Mablethorpe. Perfect for families or investors, this home offers an exciting opportunity for renovation with its expansive layout, including two versatile loft rooms and a sunlit conservatory that opens to a low-maintenance rear garden. The property is set back from the road, edged by a large front lawn that assures privacy.
With high ceilings and generous room sizes, you’ll appreciate the potential for personalization throughout. A large driveway and garage provide plenty of space for parking and storage. While the location is just moments from the town center and local amenities—including shops, eateries, and a beautiful beach—it's important to consider the community’s high crime rate and the need for modern updates, particularly in the kitchen.
This bungalow, currently listed at £205,000, combines unique charm, spaciousness, and future potential. Don’t miss out on this opportunity to make it your own! Schedule a viewing as properties like this are sure to attract attention.
3 bedroom semi-detached bungalow for sale in Harrow Road, Mablethorpe, LN12 — £159,950 • 3 bed • 1 bath • 915 ft²
2 bedroom detached bungalow for sale in Seacroft Road, Mablethorpe, LN12 — £220,000 • 2 bed • 1 bath • 781 ft²
4 bedroom detached house for sale in George Street, Mablethorpe, LN12 — £299,950 • 4 bed • 1 bath • 1269 ft²
3 bedroom detached bungalow for sale in The Boulevard, Mablethorpe, LN12 — £199,950 • 3 bed • 1 bath • 819 ft²
3 bedroom semi-detached bungalow for sale in Long Acre, Mablethorpe, LN12 — £205,000 • 3 bed • 1 bath • 1157 ft²
3 bedroom detached bungalow for sale in Seacroft Road, Mablethorpe, LN12 — £220,000 • 3 bed • 1 bath • 1333 ft²


















































































