NN8 3NS - 3 bed terraced three bedroom opportunity in Lea Way, NN8 3NS

View on Property Piper

3 bedroom terraced house for sale in Lea Way, Wellingborough, NN8

Summary - 53 LEA WAY WELLINGBOROUGH NN8 3NS

3 bed 2 bath Terraced

Compact starter home with parking, garden and renovation potential in Wellingborough.
Chain-free freehold with immediate vacant possession
Off-street block-paved driveway for two vehicles
Paved rear garden and separate outbuilding for storage
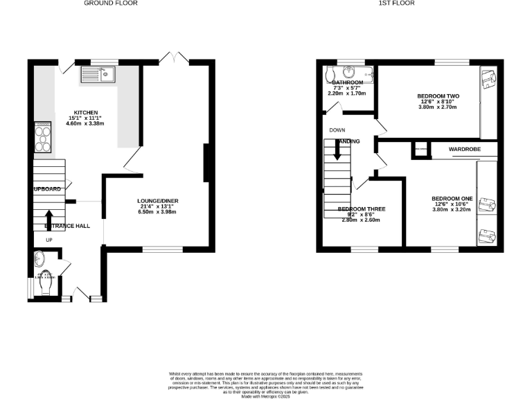
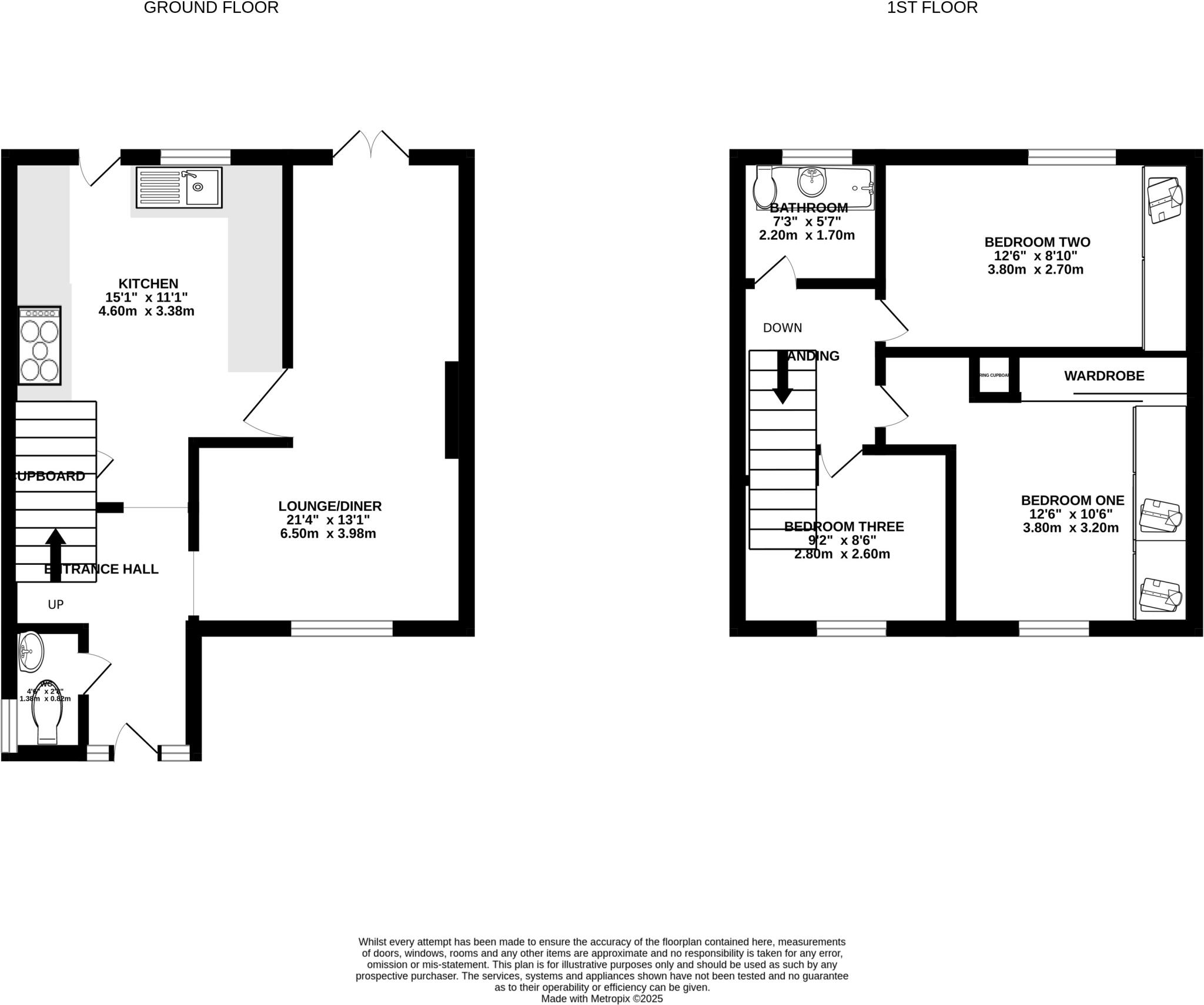
Three bedrooms; compact layout around 806 sq ft
Requires general modernisation throughout (kitchen/bathroom/updating)
Higher-than-average local crime and area deprivation to consider
Double glazing (post-2002) and gas central heating present
Small plot and modest room sizes; limited expansion potential
This three-bedroom terraced home in Wellingborough offers an affordable, chain-free opportunity for first-time buyers or hands-on renovators. The property includes off-street parking for two vehicles, a paved rear garden, and a useful outbuilding — practical features often absent at this price point.

The interior has a lounge-diner, dated kitchen with built-in oven and hob, and a ground-floor cloakroom. Upstairs are two double bedrooms, a single bedroom and a family bathroom. The house is compact (about 806 sq ft) and was built in the late 1960s/early 1970s; room sizes are generally small to medium.

Important to note: the home requires modernisation throughout. Heating is mains gas with radiators plus some secondary heaters; double glazing was fitted post-2002. The area has higher-than-average crime and local economic deprivation, which may affect resale prospects. EPC rating C is reasonable but updating will improve comfort and value.

For buyers seeking an economical starter home with scope to add value, this property presents clear potential. It’s best suited to someone prepared to renovate and tolerate a smaller plot and compact rooms, while benefiting from good local schools and convenient transport links.

Property Details

Image Descriptions

Rooms

Textual Property Features

Target Audience

AI Tags

Detected Visual Features

EPC Details

Nearby Schools

Nearest Bars And Restaurants

,,,,}

Nearest General Shops

,,}

Nearest Grocery shops

,,}

Nearest Supermarkets

,,}

Nearest Religious buildings

,,}

Nearest Medical buildings

,,,}

Nearest Leisure Facilities

,,,,}

Nearest Tourist attractions

,,}

Nearest Train stations

,,,,}

Nearest Bus stations and stops

,,,,}

Nearest Hotels

,,}

Tags

Local Market Stats

AirBnB Data

Similar Properties

Meta

High Res Images

Compatible Images

Low res Images

Thumbnails

Raw Images

High Res Floorplan Images

Compatible Floorplan Images

Low res Floorplan Images

FloorplanImages Thumbnail

Raw Floorplan Images