Spacious, practical home near Northenden village and excellent transport links.
- Recently renovated throughout, ready for immediate occupancy
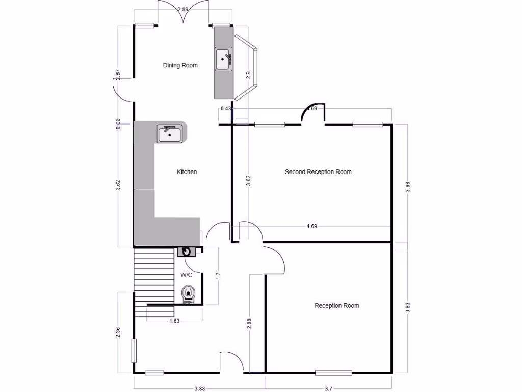
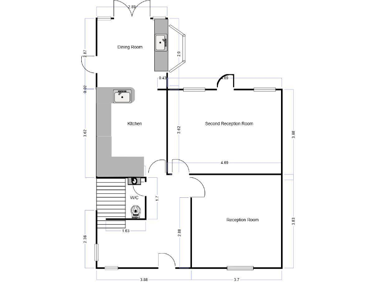
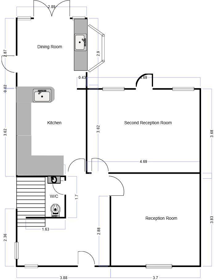
- Extended kitchen/diner with breakfast bar and glazed doors to garden
- Three bedrooms and three modern bathrooms, master with roll-top bath
- Off-street parking for multiple cars and tidy front landscaping
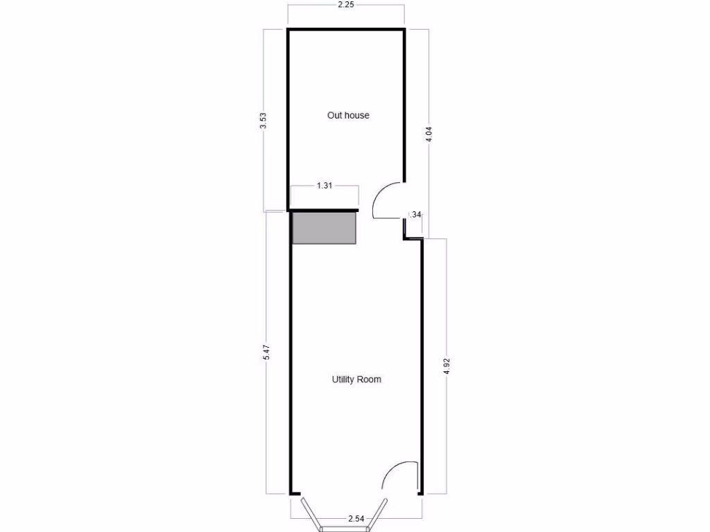
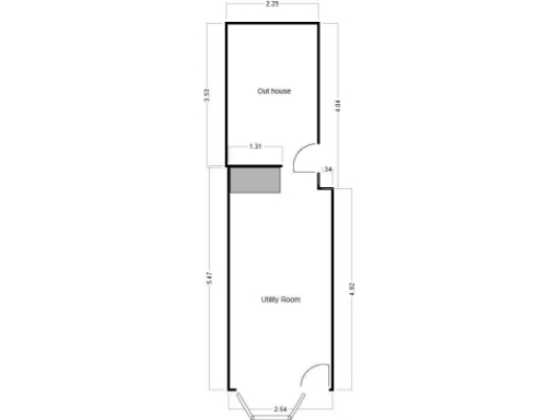
- Renovated outhouse used as utility room and garden shed
- Freehold tenure; approximately 1,248 sq ft internal space
- Council Tax Band D (moderate); no flood risk recorded
- Residential street with similar homes; no exceptional external views
This recently renovated three-bedroom semi-detached house on Shawdene Road offers ready-to-move-in family living with thoughtful contemporary touches. The extended kitchen/dining area and open-plan flow to the rear garden create a practical hub for everyday life and entertaining. The property includes three bathrooms, a distinctive master bedroom with a roll-top bath feature, and a renovated outhouse currently used as a utility and storage space.
Outside, the house benefits from off-street parking for multiple cars, a well-maintained rear garden and a decent overall plot size for the area. The location is a key strength: 0.4 mile from Northenden village amenities, short walk to parks, and with fast access to the M56/M60 for commuting to Manchester. Broadband and mobile signal are strong, and there is very low local crime, supporting a comfortable family lifestyle.
Practical details are straightforward: the property is freehold, spans about 1,248 sq ft, and is in Council Tax band D. There are many turn-key features thanks to the recent renovation, but buyers who want more living space should check planning potential for extensions. There are no notable flood risks and the neighbourhood is residential with similar homes, so no exceptional views are offered.
This house suits families seeking a modern, low-maintenance home with good local schools, handy shops and easy motorway access. Viewings will suit buyers wanting a finished home with room for modest personalisation rather than a full refurbishment project.
4 bedroom detached house for sale in Shawdene Road, Manchester, M22 — £575,000 • 4 bed • 2 bath • 1518 ft²
5 bedroom detached house for sale in Shawdene Road, Northenden, Manchester, M22 — £550,000 • 5 bed • 2 bath • 1543 ft²
3 bedroom semi-detached house for sale in Norleigh Road, Manchester, M22 — £349,999 • 3 bed • 1 bath • 893 ft²
4 bedroom house for sale in Gibwood Road, Manchester, M22 — £650,000 • 4 bed • 3 bath • 1582 ft²
3 bedroom end of terrace house for sale in Boat Lane, Northenden, Manchester, M22 — £350,000 • 3 bed • 2 bath • 991 ft²
3 bedroom semi-detached house for sale in Longley Lane, Northenden, Manchester, Greater Manchester, M22 — £400,000 • 3 bed • 1 bath • 1371 ft²


















































































































































































































