Move-in ready one-bedroom with strong communal support and visitor suite access.
Juliet balcony with coastal outlook
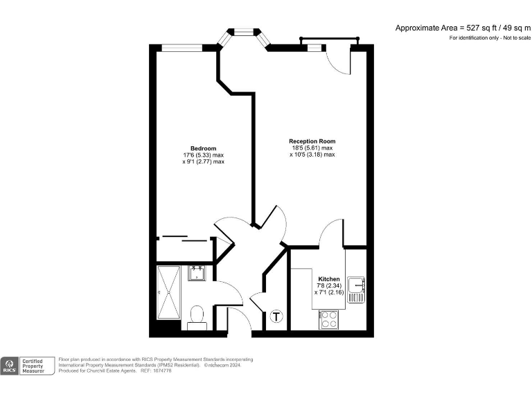
This bright one-bedroom first-floor apartment in Dean Lodge offers low-maintenance coastal living close to Southbourne’s shops and beach. The living room opens to a Juliet balcony, and the home has been newly redecorated with new carpet throughout for a move-in ready feel. Communal facilities include a Lodge Manager five days a week, owners’ lounge, wellbeing suite, laundry, lift access and a Guest Suite available for visitors, with reciprocal use at other Churchill Living sites.
Safety and support are built in: a 24-hour emergency Careline, intruder alarms and a secure video entry system provide reassurance. Off-street parking and communal gardens add convenience and pleasant outdoor space. The apartment is chain free and sits in a very affluent, low-crime area with excellent mobile and broadband coverage.
Notable costs and practical considerations: heating is electric (room heaters), the annual service charge is £3,003.86 and ground rent £647.98 (reviewable), and 112 years remain on the lease. These factors affect ongoing running costs and resale considerations for buyers. Overall, the apartment suits someone seeking a secure, low-upkeep retirement base by the sea with easy local amenities and visitor accommodation on-site.
1 bedroom retirement property for sale in Dean Lodge, Southbourne, Bournemouth, BH6 — £210,000 • 1 bed • 1 bath • 658 ft²
1 bedroom apartment for sale in Grange Road, Bournemouth, Dorset, BH6 — £190,000 • 1 bed • 1 bath • 515 ft²
1 bedroom retirement property for sale in Dean Lodge, Southbourne, Bournemouth, BH6 — £250,000 • 1 bed • 1 bath • 512 ft²
1 bedroom apartment for sale in Grange Road, Bournemouth, Dorset, BH6 — £170,000 • 1 bed • 1 bath • 444 ft²
1 bedroom retirement property for sale in Grange Road, Bournemouth, BH6 — £200,000 • 1 bed • 1 bath • 434 ft²
1 bedroom apartment for sale in Grange Road, Bournemouth, Dorset, BH6 — £210,000 • 1 bed • 1 bath • 658 ft²






























































