Chain-free one-bedroom Victorian flat with private garden near Earlsfield Station..
Ground-floor one-bedroom Victorian conversion with private garden
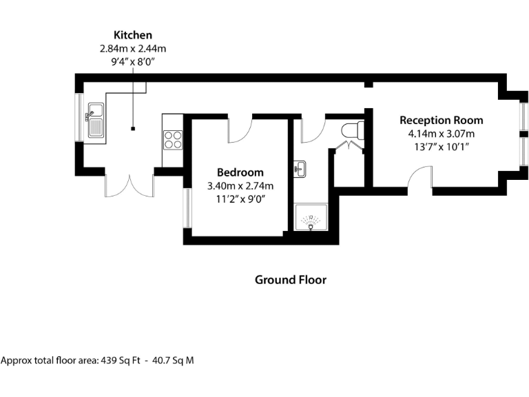
Compact overall size: 439 sqft, efficient but limited living space
Chain-free sale for a straightforward purchase process
Leasehold with 77 years remaining; lenders may refuse mortgages
Solid brick walls assumed uninsulated — energy upgrades likely needed
Medium flood risk — check insurance and flood history
Excellent transport links; short walk to Earlsfield Station
Low local crime, fast broadband and strong local amenities
This ground-floor Victorian conversion offers a compact, light-filled one-bedroom home with a private garden in the heart of Earlsfield. The reception room retains period character and high ceilings; the well-appointed kitchen and generous bedroom make the apartment comfortable for a single buyer or couple. With 439 sqft overall, the layout is efficient but clearly small—best suited to first-time buyers or those downsizing.
Location is a key strength: the property is a short walk from Earlsfield Station and close to a wide range of local shops, cafés and amenities. The neighbourhood is affluent, well connected, and benefits from low crime, fast broadband and excellent mobile signal. Several highly rated primary and secondary schools are nearby, adding to local appeal.
There are important material considerations. The flat is leasehold with 77 years remaining; some mortgage lenders may refuse lending and lease extension costs should be investigated before offer. The building has solid brick walls with no assumed insulation, so energy improvements may be needed. Flood risk is assessed as medium. These factors mean additional upfront or ongoing costs for buyers.
Offered chain-free, the apartment presents a straightforward purchase for an owner-occupier willing to accept its compact size and to budget for potential lease extension and fabric improvements. For a buyer seeking central Earlsfield living with outside space, this is a convenient, characterful option.
1 bedroom flat for sale in Cargill Road, London, SW18 — £500,000 • 1 bed • 1 bath • 682 ft²
1 bedroom flat for sale in Earlsfield Road, London, SW18 — £475,000 • 1 bed • 1 bath • 679 ft²
1 bedroom flat for sale in Trewint Street, London, SW18 — £450,000 • 1 bed • 1 bath • 495 ft²
1 bedroom flat for sale in Earlsfield Road, London, SW18 — £375,000 • 1 bed • 1 bath • 505 ft²
2 bedroom ground floor flat for sale in Steerforth Street, London, SW18 — £525,000 • 2 bed • 1 bath • 642 ft²
1 bedroom flat for sale in Kingham Close, Earlsfield, SW18 — £400,000 • 1 bed • 1 bath • 504 ft²


















































