NN4 6JQ - 5 bedroom detached house for sale in Roman Close, Wootton,…

View on Property Piper

5 bedroom detached house for sale in Roman Close, Wootton, Northampton, NN4 6JQ, NN4

Summary - 15 ROMAN CLOSE WOOTTON NORTHAMPTON NN4 6JQ

5 bed 2 bath Detached

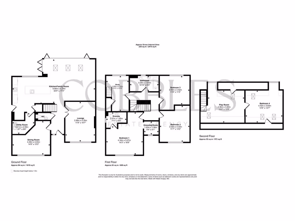
Three-storey detached house with landscaped garden and parking for three.
Five bedrooms across three floors, flexible 4/5-bed layout
Set over three floors in a quiet cul-de-sac of Wootton, this spacious 4/5-bedroom detached house delivers flexible family living and contemporary design. The ground floor centres on a large kitchen/family room with integrated appliances and a separate lounge, while a converted double garage now provides a dining/games room and utility for everyday practicality. The landscaped, low-maintenance rear garden and driveway parking for up to three cars add outdoor convenience.

The first floor hosts a master suite with dressing room and ensuite, two further good-sized bedrooms, a family bathroom and a study ideal for homework or remote working. The second floor offers a large games room plus an additional bedroom — a useful teenagers’ retreat, guest space or home office. Heating is mains gas with a mix of underfloor heating and radiators.

Practical strengths include freehold tenure, double glazing, fast broadband and excellent mobile signal, making the house well suited to modern family life and home working. The property dates from the early 1990s, so there is solid construction and scope to refresh interior finishes to personal taste.

Notable considerations: the home has two bathrooms for up to five bedrooms which may be limiting for larger families; the garage has been converted (no longer a traditional garage); council tax is high. Crime levels are average for the area. Viewings are recommended to appreciate the layout and recent landscaping in person.

Property Details

Image Descriptions

Floorplan Description

Rooms

Textual Property Features

Target Audience

AI Tags

Detected Visual Features

EPC Details

Nearby Schools

Nearest Bars And Restaurants

,,,,}

Nearest General Shops

,,}

Nearest Grocery shops

,,}

Nearest Supermarkets

,,}

Nearest Religious buildings

,,}

Nearest Medical buildings

,,,}

Nearest Airports

}

Nearest Leisure Facilities

,,,,}

Nearest Tourist attractions

,,}

Nearest Train stations

,,,,}

Nearest Bus stations and stops

,,,,}

Nearest Hotels

,,}

Tags

Local Market Stats

AirBnB Data

Similar Properties

Meta

High Res Images

Compatible Images

Low res Images

Thumbnails

Raw Images

High Res Floorplan Images

Compatible Floorplan Images

Low res Floorplan Images

FloorplanImages Thumbnail

Raw Floorplan Images