Extended family home with outbuilding and large garden near good schools.
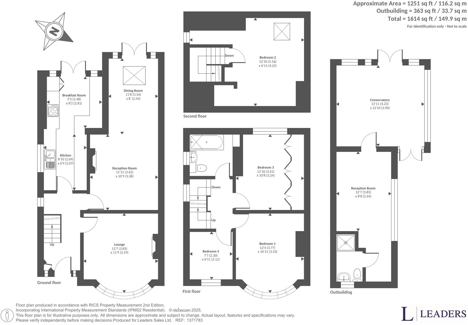
- Four-bedroom extended 1930s semi-detached house
- Large plot with private garden and driveway parking
- Separate outbuilding suitable as annexe or home office
- Double glazing installed after 2002; mains gas heating
- Only one bathroom for four bedrooms; potential bottleneck
- High local flooding risk — insurance and mitigation needed
- Above-average local crime and very deprived area indicators
- Cavity walls assumed uninsulated; energy upgrades likely required
This extended 1930s semi-detached home sits on a large plot on Parkgate Road, offering four bedrooms and two reception rooms across generous living space. Original character survives in bay windows and a chimney, while double glazing and mains gas heating provide practical comfort. A separate outbuilding gives flexible space for a home office or annexe, appealing to families needing extra room.
Practical positives include a driveway, off-street parking and a good selection of nearby primary and secondary schools, including well-rated independents and state schools. Excellent mobile signal and fast broadband suit home working and streaming. The freehold tenure and substantial square footage create clear potential for layout improvements or extensions (subject to consent).
Buyers should be aware of material negatives: the property lies in a high flooding-risk area and the neighbourhood records above-average crime and marked local deprivation. There is only one family bathroom for four bedrooms, and the cavity walls appear uninsulated, so buyers should budget for insulation and possible energy-efficiency upgrades.
Overall this home will suit families seeking space and character who are prepared to manage flood risk and invest in improvements. It offers immediate liveability with scope to add value through refurbishment and better insulation.
4 bedroom semi-detached house for sale in Becketts Lane, Boughton, Chester, CH3 — £440,000 • 4 bed • 2 bath • 1736 ft²
4 bedroom semi-detached house for sale in Liverpool Road, Chester, CH2 — £475,000 • 4 bed • 1 bath • 1519 ft²
3 bedroom semi-detached house for sale in Leyland Drive, Saltney Ferry, CH4 — £229,995 • 3 bed • 1 bath • 776 ft²
4 bedroom semi-detached house for sale in Chester Road, Great Sutton, Ellesmere Port, CH66 — £410,000 • 4 bed • 1 bath • 1995 ft²
4 bedroom semi-detached house for sale in Fox Covert Lane, Picton, Chester, Cheshire, CH2 — £395,000 • 4 bed • 1 bath • 3071 ft²
3 bedroom end of terrace house for sale in Wordsworth Crescent, Blacon, Chester, CH1 5UB, CH1 — £180,000 • 3 bed • 2 bath • 822 ft²






























































































































