Move-in-ready period home close to town and beach for modern family living.
Recently renovated throughout with modern kitchen and bathroom
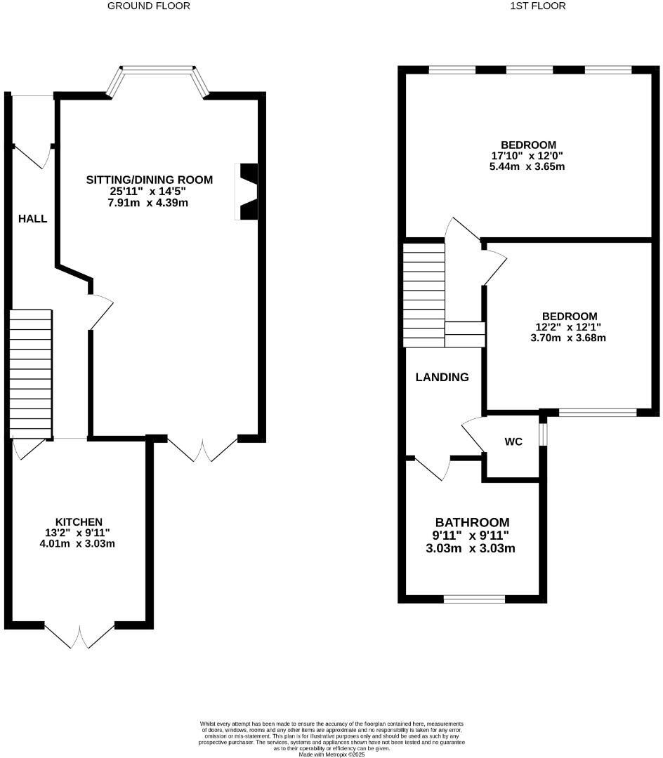
Large open-plan reception room ideal for entertaining
Two double bedrooms; master could be split for a third bedroom
Private west-facing rear garden with right of access over neighbour
Small plot and mid-terrace position; street parking only
One bathroom only — may be limiting for some buyers
Freehold, approx 964 sq ft, double glazed and gas central heating
Short, level walk to Hythe High Street and the seafront
This striking Victorian terrace combines period character with a comprehensive recent refurbishment. The current owners have fitted a modern kitchen with granite worktops and integrated appliances, and installed an updated bathroom, double glazing and gas central heating — so the house is largely move-in ready.
Set within easy walking distance of Hythe High Street and the seafront, the property suits couples or small families seeking town-and-beach lifestyle. The large open-plan reception room provides flexible living and entertaining space, while the generous master bedroom offers potential to create a third bedroom if needed.
Outside there is a private west-facing rear garden that enjoys afternoon sun. The plot is small and the garden is accessed via a right of way over the adjoining northern property; the house is a mid-terrace with on-street parking only.
Practical details: the home is freehold, broadly 964 sq ft, recently renovated throughout, and has one bathroom. Buyers should note the single bathroom, compact plot and terraced position when comparing similar homes in the area.
2 bedroom end of terrace house for sale in St. Nicholas Terrace, Hythe, CT21 — £375,000 • 2 bed • 1 bath • 901 ft²
3 bedroom semi-detached house for sale in Park Road, Hythe, CT21 — £385,000 • 3 bed • 1 bath • 1005 ft²
4 bedroom terraced house for sale in Ormonde Road, Hythe, CT21 — £425,000 • 4 bed • 3 bath • 1088 ft²
2 bedroom end of terrace house for sale in St. Leonards Road, Hythe, CT21 — £325,000 • 2 bed • 1 bath • 557 ft²
3 bedroom detached house for sale in Victoria Road, Hythe, CT21 — £475,000 • 3 bed • 1 bath • 984 ft²
4 bedroom terraced house for sale in Hythe, CT21 — £767,500 • 4 bed • 3 bath • 2242 ft²






















































