Extended family home with garage and large private garden.
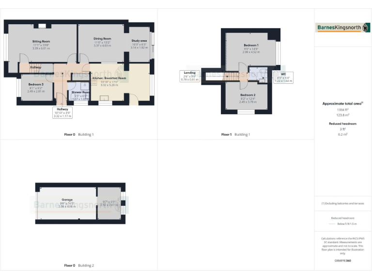
- Extended semi-detached chalet bungalow with flexible layout
- Three bedrooms; ground-floor bedroom and shower room
- Separate sitting room plus dining room with study area
- 1980s fitted kitchen — bright but in need of updating
- Detached garage and driveway providing private parking
- Long, mature and fully enclosed rear garden
- Freehold, chain free; built 1967–1975
- Council tax above average; single main bathroom to note
Thoughtfully extended and offered chain free, this three-bedroom semi-detached chalet bungalow provides generous, flexible living ideal for growing families. The layout includes a separate sitting room, dining room with study area, and a fitted kitchen/breakfast room opening to a long, mature rear garden—excellent for outdoor play and entertaining.
Practical features include a ground-floor bedroom and shower room, two double bedrooms and a cloakroom on the first floor, detached garage and driveway parking. The property dates from the late 1960s/early 1970s and benefits from double glazing and gas central heating, giving a sound, comfortable base to personalise.
The kitchen is a 1980s traditional fit with oak cabinets and vinyl flooring; it is bright but dated and presents clear scope for updating to suit contemporary tastes. There is one main bathroom/shower room only, and council tax is above average—factors to consider when budgeting.
Located in a sought-after Tonbridge location with fast broadband, excellent mobile signal and very low local crime, the home sits close to several well-regarded primary and secondary schools and local amenities. Overall this is a spacious, well-positioned property with good renovation potential for a buyer who wants space, garden and parking without a chain.
3 bedroom bungalow for sale in Denbeigh Drive, Tonbridge, Kent, TN10 — £500,000 • 3 bed • 1 bath • 898 ft²
3 bedroom bungalow for sale in Higham Gardens, Tonbridge, Kent, TN10 — £625,000 • 3 bed • 2 bath • 1292 ft²
5 bedroom detached house for sale in Deakin Leas, Tonbridge, TN9 2JT, TN9 — £1,200,000 • 5 bed • 3 bath • 2208 ft²
3 bedroom semi-detached house for sale in Faraday Ride, Tonbridge, TN10 4RL, TN10 — £500,000 • 3 bed • 2 bath • 1616 ft²
3 bedroom bungalow for sale in Sandhurst Road, Tunbridge Wells, TN2 — £475,000 • 3 bed • 2 bath • 1080 ft²
4 bedroom bungalow for sale in Guestwick, Tonbridge, Kent, TN10 — £550,000 • 4 bed • 1 bath • 891 ft²






























































