**Standout Features:**
- Bright open-plan kitchen/living space with designer kitchen
- Three spacious bedrooms, including a bay-fronted double bedroom with en suite
- Contemporary bathroom and guest cloakroom
- Access to a landscaped private garden with an outbuilding
- Off-street parking and Electric Vehicle charging point
- Modern amenities including underfloor heating and solar panels
- Newly constructed in 2022 with Share of Freehold ownership
- Chain-free opportunity
**Summary:**
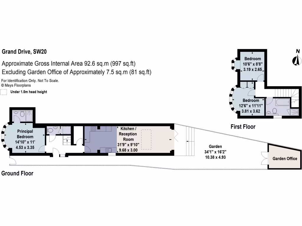
Discover this stunning three-bedroom apartment nestled in an attractive Edwardian detached house in SW20, offering a blend of modern luxury and classic charm. At 997 sq ft, this newly renovated home features a bright bay-fronted double bedroom with a chic en suite, and an impressive open-plan living space that seamlessly connects to a private landscaped garden through full-height bifold doors. The bespoke contemporary kitchen is a chef's dream, equipped with fully integrated appliances and stone worktops.
Additional perks include off-street parking with an EV charging point, solar panels, and underfloor heating, making it an eco-conscious choice. Enjoy a convenient lifestyle with Raynes Park Station just 320 meters away, providing swift access to London, as well as vibrant local amenities including shops, cafes, and well-rated schools.
However, please note that the property has a listed status which may involve some challenges for future renovations. This apartment is ideal for families or investors looking for a modern, self-contained living space in a desirable area. With its exclusive features and favorable location, this gem won't last long—schedule your viewing today!
3 bedroom detached house for sale in Grand Drive, Raynes Park, SW20 — £1,250,000 • 3 bed • 2 bath • 1345 ft²
3 bedroom detached house for sale in Grand Drive,
Raynes Park, SW20 — £1,250,000 • 3 bed • 3 bath • 1345 ft²
1 bedroom flat for sale in Blenheim Road, Raynes Park, SW20 — £450,000 • 1 bed • 1 bath • 614 ft²
4 bedroom detached house for sale in Grand Drive, Wimbledon, London, SW20 — £1,650,000 • 4 bed • 2 bath • 2275 ft²
2 bedroom flat for sale in Blenheim Road, Raynes Park, SW20 — £475,000 • 2 bed • 1 bath • 786 ft²
1 bedroom flat for sale in Westway, Raynes Park, London, SW20 — £450,000 • 1 bed • 1 bath • 659 ft²


























































