**Standout Features:**
- Characterful Victorian semi-detached cottage
- 4 bedrooms, including flexible space for an office
- 2 reception rooms with traditional fireplaces
- Large mature front and rear gardens, ideal for outdoor living
- Ample parking for up to 5 vehicles and single garage
- No onward chain
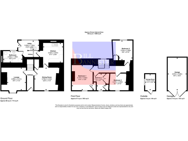
Nestled on the edge of Carharrack, this charming four-bedroom Victorian cottage seamlessly combines traditional character with modern-day conveniences. Featuring two inviting reception rooms adorned with timber beams and cozy fireplaces, including one with a multifuel burner for warmth and ambiance, this home is sure to embrace any family looking for comfort and charm. The well-equipped kitchen transitions smoothly into a utility room, with a family bathroom that combines a bath and a separate shower cubicle for versatile family use.
Outside, enjoy the spacious, south-facing garden brimming with mature shrubs and a delightful patio area perfect for summer entertaining. With convenient driveway parking for two vehicles and room for three additional ones in front of the garage, practicality meets comfort. Additionally, the flexibility of the bedrooms allows for a potential home office for remote work or study nestled in a peaceful, rural environment.
The property is move-in ready and offers great potential for personal touches, but it may require consideration regarding its historical maintenance as it is constructed pre-1900 with no insulation. Its location provides access to beautiful local walks and a friendly community atmosphere, along with school options noted for good Ofsted ratings. Don’t miss the chance to envision your future in this idyllic cottage—early viewings are encouraged, as opportunities like this are rare.
4 bedroom terraced house for sale in Carharrack, TR16 — £435,000 • 4 bed • 1 bath • 837 ft²
2 bedroom terraced house for sale in Albion Row, Carharrack, Redruth, TR16 — £209,950 • 2 bed • 1 bath • 837 ft²
3 bedroom cottage for sale in Hillside Road, Carharrack, Redruth, TR16 — £325,000 • 3 bed • 1 bath • 1129 ft²
3 bedroom terraced house for sale in Carharrack, TR16 — £319,500 • 3 bed • 1 bath • 966 ft²
3 bedroom detached house for sale in Sparry Bottom, Carharrack., TR16 — £495,000 • 3 bed • 1 bath • 1120 ft²
2 bedroom cottage for sale in Cottage finished to a Modern Standard, Carharrack, TR16 — £235,000 • 2 bed • 1 bath • 625 ft²






















































































































































