ME19 5QP - 4 bed spacious modern detached in Grassmere, ME19 5QP

View on Property Piper

4 bedroom detached house for sale in Grassmere, Leybourne, West Malling, Kent, ME19

Summary - 12 GRASSMERE LEYBOURNE WEST MALLING ME19 5QP

4 bed 2 bath Detached

Newly remodelled four-bedroom family home in a quiet cul-de-sac, walking distance to schools and shops..
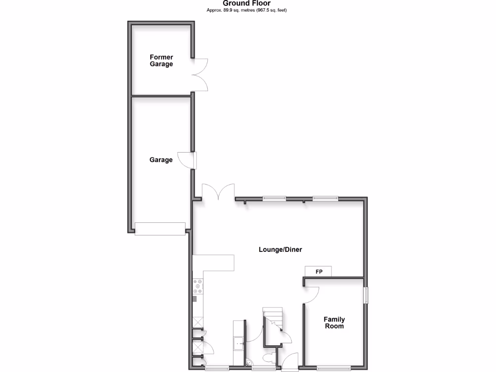
- Spacious L-shaped kitchen/lounge/diner with log burner
- Four good-sized bedrooms; principal with en-suite
- Newly renovated throughout; modern double glazing installed
- Former tandem garage now single; rear garden room/home office
- Long driveway parking plus single garage
- Walkable to well-rated primary school and local shop
- Council tax band described as expensive
- Low flood risk; fast broadband and low crime area
This recently remodelled four-bedroom detached home is arranged for contemporary family living. The remodel creates a generous L-shaped kitchen/lounge/diner with a cosy log burner at its heart — ideal for family life and entertaining. All four bedrooms are good sizes and the principal benefits from an en-suite shower room; a separate ground-floor cloakroom adds practical convenience.

Set in a quiet, exclusive cul-de-sac within walking distance of a well-regarded primary school, local shop and reliable road and rail links, the house suits families who want space, quiet and easy commuting. The plot is a decent size with front and rear gardens and a long driveway for multiple vehicles.

Practical points to note: the former tandem garage has been divided to provide a large single garage and a rear garden-room currently used as a home office — useful, but buyers should verify planning/building-regulation consents for any conversions. Council tax is described as expensive. The property is newly renovated and benefits from modern double glazing, mains gas central heating and fast broadband, but interested parties should confirm fixtures, services and exact dimensions.

This house offers a comfortable, modern family layout in a very affluent, low-crime neighbourhood. It will suit growing families who value generous communal space, good local schools and straightforward commuter access, provided they are comfortable with the single garage arrangement and the ongoing council tax cost.

Property Details

Image Descriptions

Floorplan Description

Rooms

Textual Property Features

Target Audience

AI Tags

Detected Visual Features

EPC Details

Nearby Schools

Nearest Bars And Restaurants

,,,,}

Nearest General Shops

,,}

Nearest Grocery shops

,,}

Nearest Supermarkets

,,}

Nearest Religious buildings

,,}

Nearest Medical buildings

,,,}

Nearest Leisure Facilities

,,,,}

Nearest Tourist attractions

,,}

Nearest Train stations

,,,,}

Nearest Bus stations and stops

,,,,}

Nearest Hotels

,,}

Tags

Local Market Stats

Similar Properties

Meta

High Res Images

Compatible Images

Low res Images

Thumbnails

Raw Images

High Res Floorplan Images

Compatible Floorplan Images

Low res Floorplan Images

FloorplanImages Thumbnail

Raw Floorplan Images