**Standout Features:**
- Semi-detached mid-20th century home in a quiet cul-de-sac
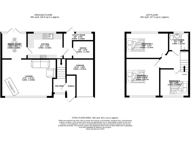
- Three double bedrooms and one bathroom
- Spacious living room with large windows
- Dining room with French doors leading to the rear garden
- Off-street parking for two vehicles
- Good-sized plot with front and rear garden space
- Double glazing and gas central heating throughout
- Fantastic local amenities and highly-rated schools nearby
**Notable Concerns:**
- Requires modernization, particularly in decor and design
- Older features may need updating for contemporary living
Discover a charming opportunity with this three-bedroom semi-detached home, nestled in a quiet cul-de-sac in NN9 5DT. With an average-sized footprint of 981 square feet, this mid-20th-century residence boasts spacious living areas, including a light-filled living room and a dining room that invites the outdoors in through French doors. Enjoy the convenience of off-street parking and a manageable, low-maintenance garden—a perfect retreat for family gatherings or quiet evenings.
Although the property may need some modernization, it presents a blank canvas for personal touches and upgrades, ideal for families looking to create their dream home or investors seeking rental potential. Located close to Finedon high street, you will benefit from excellent local amenities and highly-rated schools that cater to your family's needs. With double glazing and gas radiator central heating already in place, the fundamentals are ready; early viewings are highly recommended to seize this rare opportunity in an affluent area. Don't miss your chance to turn this house into your cozy family sanctuary!
3 bedroom semi-detached house for sale in Sibley Road, Finedon, NN9 — £220,000 • 3 bed • 2 bath • 881 ft²
2 bedroom property for sale in Alington Close, Finedon, Wellingborough, NN9 — £220,000 • 2 bed • 1 bath • 664 ft²
3 bedroom semi-detached house for sale in William Street, Finedon, NN9 — £240,000 • 3 bed • 1 bath • 1014 ft²
3 bedroom semi-detached house for sale in Hayden Avenue, Finedon, NN9 — £275,000 • 3 bed • 1 bath • 980 ft²
3 bedroom detached house for sale in Eastlands Road, Finedon, NN9 — £320,000 • 3 bed • 1 bath • 1212 ft²
3 bedroom semi-detached house for sale in Sibley Road, Finedon, NN9 — £210,000 • 3 bed • 2 bath • 1097 ft²


































































