Spacious rural renovation project with generous garden and character features.
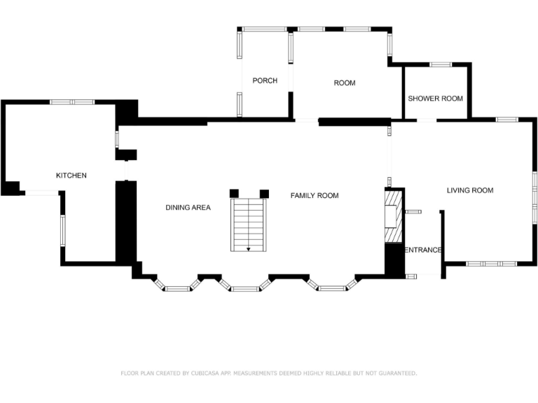
- Four bedrooms and two bathrooms across two storeys
- Approximately 1,428 sq ft of accommodation
- Large wraparound garden with mature trees and privacy
- Solar panels fitted in 2010, mains services connected
- Oil-fired central heating; log burner in lounge
- Requires full refurbishment and modernisation throughout
- Council Tax Band F — relatively high running cost
- Very low local crime, excellent mobile and fast broadband
Set in the peaceful village of Llandrillo, this four-bedroom detached home offers generous family accommodation and a large wraparound garden. The house sits within the Clwydian Range and Dee Valley AONB and provides a quiet rural base with easy access to walking, cycling and the wider Snowdonia area.
The property requires full refurbishment but carries strong value drivers: spacious rooms across two floors (approximately 1,428 sq ft), original character such as exposed beams, multiple large windows, and roof-mounted solar panels installed in 2010. Heating is by oil-fired central heating with a lounge log burner; services are mains electricity, water and drainage.
Practical points to note: the house is being sold freehold and currently needs renovation, so expect upgrade costs to heating, finishes and possibly services. Council Tax Band F is relatively expensive. The site benefits from off-street parking, excellent mobile signal and fast broadband, useful for home working in a rural setting.
This property will suit a family or buyer seeking a substantial renovation project with countryside appeal. Its size and garden offer scope to reconfigure rooms or extend (subject to planning), creating a comfortable modern home while retaining period character.
5 bedroom detached house for sale in Llandrillo, Corwen, LL21 — £550,000 • 5 bed • 5 bath • 2002 ft²
3 bedroom detached house for sale in 4 Y Felin Goed, Llandrillo, LL21 — £325,000 • 3 bed • 1 bath • 842 ft²
4 bedroom detached house for sale in Bryn Derw, Park Street, Llanrhaeadr Ym Mochnant, SY10 — £450,000 • 4 bed • 3 bath • 1495 ft²
4 bedroom end of terrace house for sale in The Crescent, Corwen, LL21 — £400,000 • 4 bed • 2 bath • 1652 ft²
6 bedroom semi-detached house for sale in Maesteg, Corwen, LL21 — £490,000 • 6 bed • 5 bath • 1055 ft²
4 bedroom house for sale in Llandrillo Road, Cynwyd, Corwen, LL21 — £375,000 • 4 bed • 2 bath • 1712 ft²






































































































