Chain-free one-bedroom close to town with manager and communal gardens.
Purpose-built first-floor retirement flat with lift access
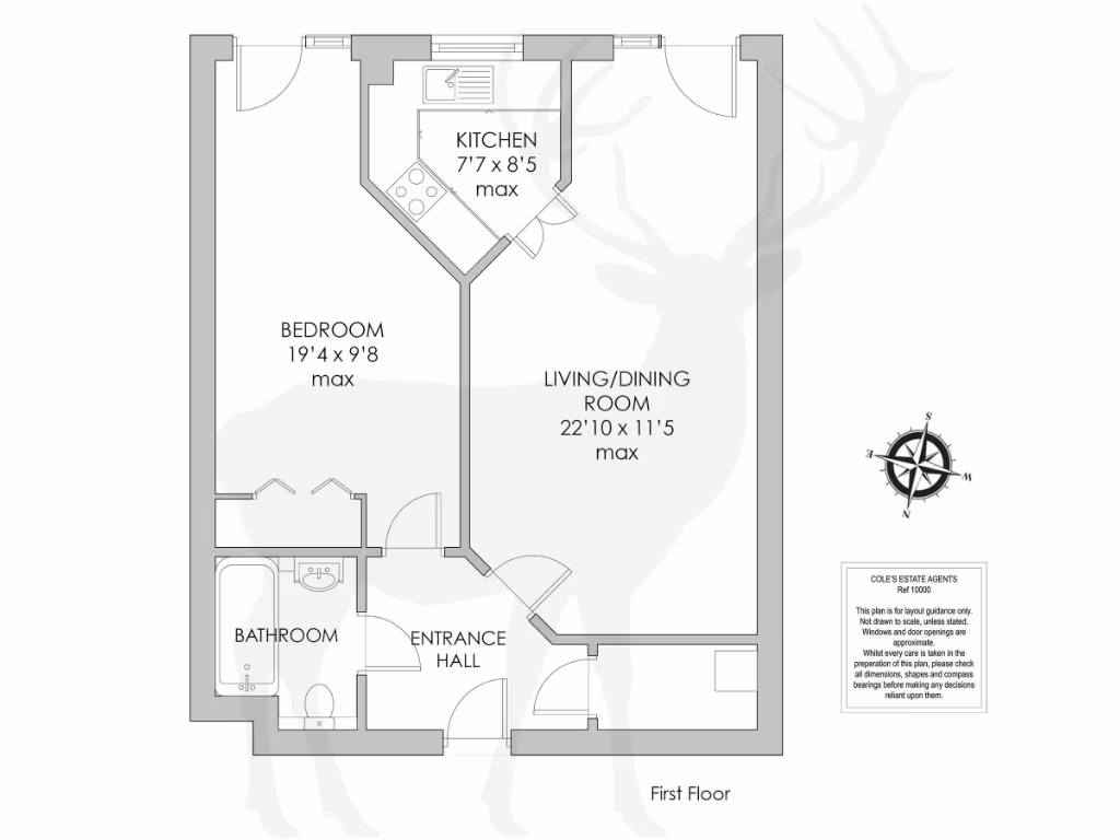
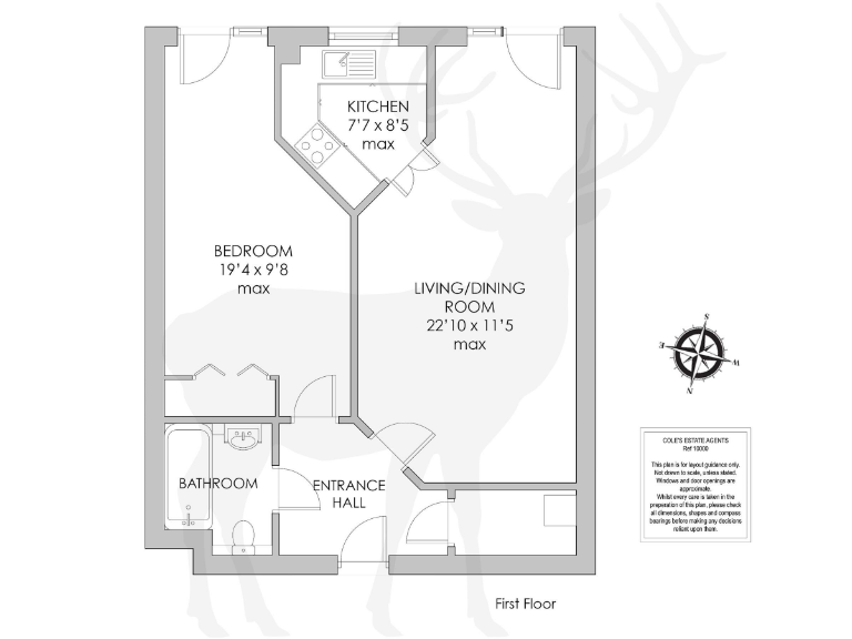
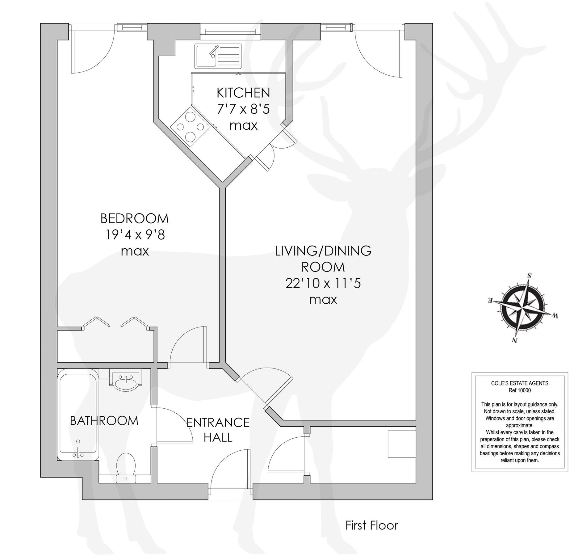
A purpose-built first-floor retirement apartment offering low-maintenance living close to East Grinstead town centre. The one-bedroom layout includes a living/dining room with Juliet balcony, double bedroom with fitted wardrobes, kitchen and bathroom — practical accommodation arranged over about 511 sq ft. Communal facilities include a residents’ lounge, laundry, well-kept gardens, off-street parking and an on-site house manager.
Comfort and safety features are focused on retirement needs: a telecom entry system, emergency pull cords in principal rooms, lift access to the first floor and double glazing. The building is relatively modern (constructed c.1996–2002) and carries a good EPC B rating, which helps running costs despite the main fuel being electricity and electric storage heaters.
The flat is offered chain-free and is likely attractive to downsizers or those seeking a secure, low-upkeep home close to shops, healthcare and transport. The property is leasehold; prospective buyers should check the lease length, ground rent and service charges. Note that the local crime statistic is higher than average, so buyers should consider security measures and review local crime reports.
Internally the décor is generally tidy but some areas show dated finishes; buyers may want to update cosmetic elements to personal taste. Overall this is a practical retirement option with on-site support and convenient town-centre access, balanced by leasehold costs and the need to review local safety considerations.
1 bedroom retirement property for sale in Fairfield Road, East Grinstead, RH19 — £110,000 • 1 bed • 1 bath • 518 ft²
1 bedroom apartment for sale in Ashdown Gate, London Road, East Grinstead, West Sussex, RH19 — £59,950 • 1 bed • 1 bath • 442 ft²
1 bedroom retirement property for sale in Lewes Road, Daledene Lewes Road, RH19 — £240,000 • 1 bed • 1 bath • 706 ft²
2 bedroom apartment for sale in Great House Court, Fairfield Road, East Grinstead, RH19 — £195,000 • 2 bed • 1 bath • 635 ft²
2 bedroom apartment for sale in Great House Court, Fairfield Road, East Grinstead, RH19 — £165,000 • 2 bed • 1 bath • 667 ft²
2 bedroom apartment for sale in Forest Lodge, Portland Road, East Grinstead, RH19 — £150,000 • 2 bed • 1 bath • 603 ft²














































