Low-maintenance two-bed park home with wide rural views and generous garden..
- Brand-new single-storey park home built in 2025
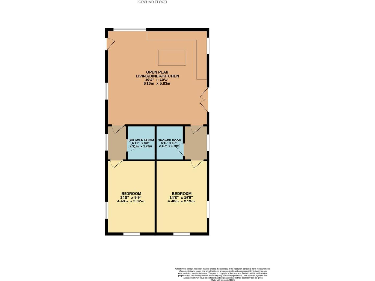
- Two double bedrooms and two contemporary shower rooms
- Open-plan living/dining/kitchen with high ceilings and natural light
- Large plot and wrap-around lawn with countryside views
- Driveway parking; single-vehicle bay with low entrance steps
- Site fees approx £63.21/week; service charge approx £3,287.92/year
- Residents 25+ only; no children and no cats permitted
- Slow broadband; area has above-average crime and deprivation
This brand-new, single-storey park home (built 2025) sits on a generous plot in peaceful Woodside Park, offering direct countryside views and a mature oak to the rear. The home is finished to a high specification with energy-efficient fittings, open-plan living, two double bedrooms and two contemporary shower rooms — a low-maintenance layout suited to downsizers or those seeking a rural retreat.
Outside, the property benefits from a paved driveway, wrap-around lawn and good privacy thanks to its rural setting. The compact but well-planned footprint (approx. 761 sq ft) makes daily living easy while the extensive plot allows room for sitting-out areas and gardening. The single-storey layout and modern finishes give this home immediate move-in appeal.
Practical considerations are straightforward: tenure is freehold and the home is new build, but there are ongoing costs — site fees of £63.21 per week (approx. £3,287.92 annually) and a listed service charge. Residents must be aged 25+; children are not permitted and cats are not allowed. Broadband speeds are reported slow, while mobile signal is excellent. The wider area shows higher-than-average crime and local deprivation, which may concern some buyers.
Overall, this property will suit buyers seeking a low-maintenance, modern home with strong countryside character and easy single-level living. It’s particularly well-matched to downsizers or those wanting a quiet rural base, provided they accept the community rules, service/site fees and the slower broadband infrastructure.
2 bedroom park home for sale in Woodside Park, Luton, LU1 — £330,000 • 2 bed • 2 bath • 675 ft²
2 bedroom park home for sale in Little Meadow, Woodside Park Home, Woodside, LU1 — £175,000 • 2 bed • 1 bath • 679 ft²
2 bedroom park home for sale in Woodside Park, Slip End, LU1 — £300,000 • 2 bed • 2 bath • 800 ft²
2 bedroom park home for sale in Luton, Bedfordshire, LU1 — £280,000 • 2 bed • 2 bath • 760 ft²
2 bedroom park home for sale in Luton, Bedfordshire, LU1 — £330,000 • 2 bed • 2 bath • 880 ft²
1 bedroom park home for sale in The Grove, Woodside Park, Woodside, Luton, Beds, LU1 4LS, LU1 — £105,000 • 1 bed • 1 bath • 462 ft²


































































