Auction lot with refurbishment and rental potential close to Newcastle centre.
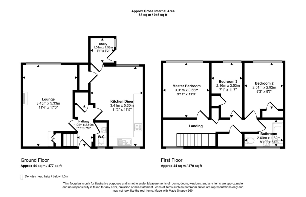
Three-bedroom freehold terrace, approx. 946 sqft
Offered for sale by online unconditional auction, this three-bedroom terrace presents clear scope for adding value. The property is freehold, around 946 sqft, and sits minutes from Newcastle city centre with strong transport links and fast broadband — attractive to investors seeking rental income or buyers wanting a close-in family home.
Internally the house requires updating: the living room retains 1970s wood paneling, heavy-wear carpeting and a dated fireplace. The kitchen-diner is a good size but will benefit from refurbishment; there is a ground-floor WC and a single first-floor family bathroom. Gardens to the front and rear provide outdoor space and potential for landscaping or extension (subject to consents).
Be frank about the location: this sits within a very deprived area with higher-than-average crime levels, which will affect desirability for some buyers and rental values. Council Tax Band A and excellent mobile signal are positives. Sold at auction, the sale is unconditional and suited to cash buyers or those prepared to move quickly.
This property is best for experienced investors or hands-on buyers who can manage renovation and tenancy in a challenging urban market. With sensible works and professional lettings management, there is realistic upside from refurbishment and proximity to the city centre.
4 bedroom terraced house for sale in Irthing Avenue, ., Newcastle upon Tyne, Tyne and Wear, NE6 2TQ, NE6 — £95,000 • 4 bed • 1 bath • 1283 ft²
2 bedroom terraced house for sale in Pinner Place, Walker, Newcastle upon Tyne, Tyne and Wear, NE6 2NA, NE6 — £70,000 • 2 bed • 1 bath • 672 ft²
3 bedroom end of terrace house for sale in St Anthonys Road, Walker, Newcastle Upon Tyne, NE6 — £75,000 • 3 bed • 1 bath • 721 ft²
2 bedroom terraced house for sale in Fossway, Walker, Newcastle upon Tyne, Tyne and Wear, NE6 4UJ, NE6 — £45,000 • 2 bed • 1 bath • 665 ft²
2 bedroom semi-detached house for sale in Eastgate Gardens, Grainger Park, Newcastle upon Tyne, Tyne and Wear, NE4 8DR, NE4 — £100,000 • 2 bed • 1 bath • 819 ft²
3 bedroom semi-detached house for sale in Kings Close, Sunderland Road, Gateshead, Tyne and Wear, NE8 3PW, NE8 — £95,000 • 3 bed • 1 bath • 668 ft²














































