Large private gardens, garage and superb Bingley location for growing families.
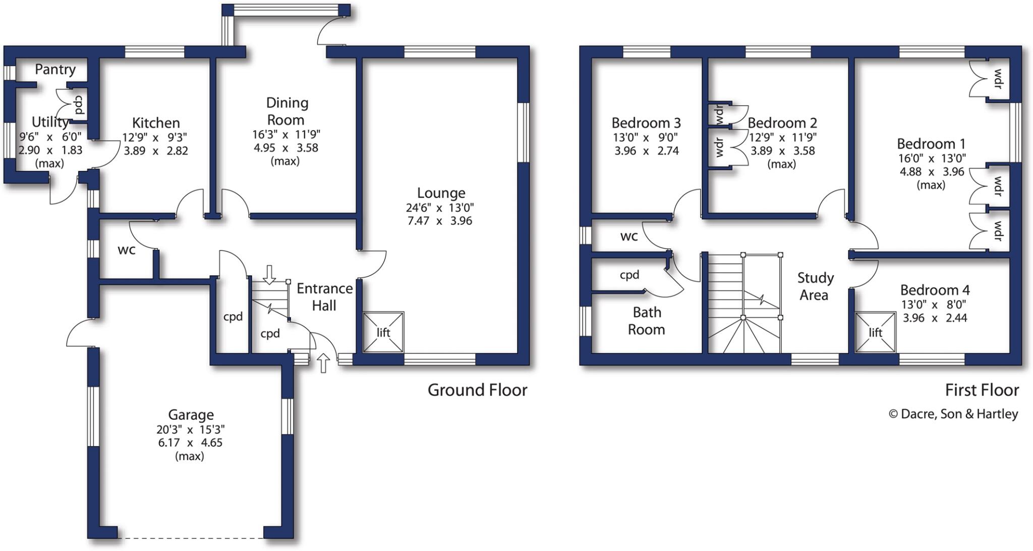
Four double bedrooms across two storeys, versatile family layout
Two generous reception rooms; one includes an internal lift
Well-maintained front, side and large rear gardens with patio
Double garage plus ample driveway parking for multiple vehicles
Sold freehold with no onward chain; internal lift remains
Title is un-registered — legal conveyancing implications
Only one main bathroom plus separate WC; scope to add facilities
Council tax band above average; modest modernisation potential
Set on a generous plot in one of Bingley’s most desirable streets, this detached four-bedroom home offers flexible family living with strong practical benefits. The house features two sizeable reception rooms, a fitted kitchen with adjoining utility and pantry, and a double garage plus ample driveway parking — useful for larger households. The interior is well-presented throughout but offers scope for modest modernisation to suit a buyer seeking to personalise space and add value.
The gardens are a standout: well-kept, largely lawned front, side and rear areas with mature hedging for privacy, and a raised paved terrace ideal for outdoor entertaining. The elevated rear outlook gives pleasant suburban and countryside glimpses beyond neighbouring rooftops. Practical amenities include double glazing, gas central heating with boiler and radiators, fast broadband and excellent mobile signal.
Important factual points: the property is sold freehold with no onward chain, the internal lift will remain, and the title is un-registered. Accommodation includes four double bedrooms but only one main family bathroom plus a separate WC; buyers seeking additional bathrooms would need to consider creating extra facilities. Council tax is above average for the area. Overall this is a roomy, well-appointed family home in a very low-crime, affluent neighbourhood with good local schools and transport links.
4 bedroom detached house for sale in Lady Lane, Bingley, West Yorkshire, BD16 — £550,000 • 4 bed • 2 bath • 1670 ft²
4 bedroom detached house for sale in Oakridge Court, Bingley, West Yorkshire, BD16 — £645,000 • 4 bed • 2 bath • 2100 ft²
4 bedroom detached house for sale in Dene Bank, Bingley, West Yorkshire, BD16 — £550,000 • 4 bed • 2 bath • 1278 ft²
4 bedroom house for sale in Park Drive, Bingley, West Yorkshire, BD16 — £700,000 • 4 bed • 3 bath • 2363 ft²
5 bedroom detached house for sale in Woodvale Crescent, Bingley, West Yorkshire, BD16 — £650,000 • 5 bed • 3 bath • 2540 ft²
5 bedroom detached house for sale in Leyburn Grove, Bingley, West Yorkshire, BD16 — £400,000 • 5 bed • 3 bath • 2006 ft²


























































































































