PL27 7EF - 4 bed spacious dormer detached in Wadebridge, PL27 7EF

View on Property Piper

4 bedroom detached house for sale in Whiterock Close, Wadebridge, PL27

Summary - 3, WHITEROCK CLOSE, WADEBRIDGE PL27 7EF

4 bed 1 bath Detached

Four bedrooms, large plot and excellent first-floor views — ideal for a renovation family project.
Chain free with freehold tenure
This detached four-bedroom dormer house occupies a private cul-de-sac plot close to Wadebridge town centre and is being sold chain free. The property sits on a decent mature garden with greenhouse, summerhouse, garage and additional driveway parking, and offers particularly attractive first-floor views across rooftops to surrounding countryside and landmarks.

The house is structurally traditional 1950s–1960s concrete block cavity construction with double glazing fitted post-2002, mains gas boiler and radiators, and connected services. Accommodation is generous throughout — a long triple-aspect lounge, sizeable kitchen with serving hatch, ground-floor bathroom and two good first-floor bedrooms with under-eaves storage and panoramic views.

This is a project property in need of modernisation and refurbishment throughout: dated kitchen and bathroom fittings, cosmetic wear, and some external features requiring attention (former terrace above garage needs steps). EPC currently rated E. The condition gives scope to create a comfortable family home or to add value for resale, subject to updating and interior reconfiguration if desired.

Practical benefits include freehold tenure, no flood risk, excellent mobile signal and fast broadband for remote working, low local crime and close proximity to several 'Good' primary and secondary schools. Council Tax Band D and an average overall size make it suitable for buyers wanting space near town with countryside views.

Property Details

Image Descriptions

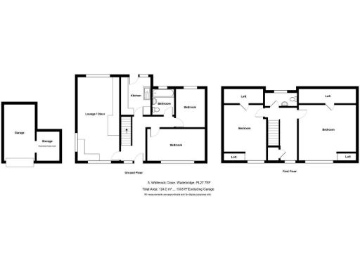
Floorplan Description

Rooms

Textual Property Features

Target Audience

AI Tags

Detected Visual Features

EPC Details

Nearby Schools

Nearest Bars And Restaurants

,,,,}

Nearest General Shops

,,}

Nearest Grocery shops

,,}

Nearest Supermarkets

,,}

Nearest Religious buildings

,,}

Nearest Medical buildings

,,,}

Nearest Leisure Facilities

,,,,}

Nearest Tourist attractions

,,}

Nearest Train stations

,,,,}

Nearest Bus stations and stops

,,,,}

Nearest Hotels

,,}

Tags

Local Market Stats

AirBnB Data

Similar Properties

Meta

High Res Images

Compatible Images

Low res Images

Thumbnails

Raw Images

High Res Floorplan Images

Compatible Floorplan Images

Low res Floorplan Images

FloorplanImages Thumbnail

Raw Floorplan Images